终于,郑州市中医院针灸医院来了,长这样!






其实在去年年初的时候,郑州市自然资源和规划局就公布了关于管城区芦邢庄城中村改造的具体规划详情,其中对三个地块修改论证进行了公示。
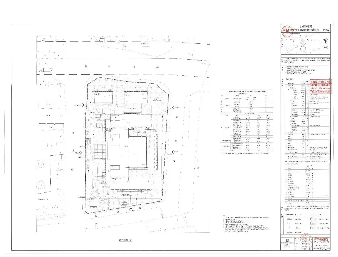
修改的范围就是管城区内滨河路、魏庄西街、恒安街和银鹰路合围的区域,其中就涉及到了医疗卫生用地。

这里在之前就是大家关注度比较高的新乡医学院三全学院的附属医院项目,但是推进了十多年的时间,数次调整,最终还是改了。

最早期的规划,这里是集医疗、教学、科研、预防保健、康复于一体的一个三级甲等标准的现代化医院,也就是郑州市的民族医院项目,后来被新乡医学院三全学院拿下。
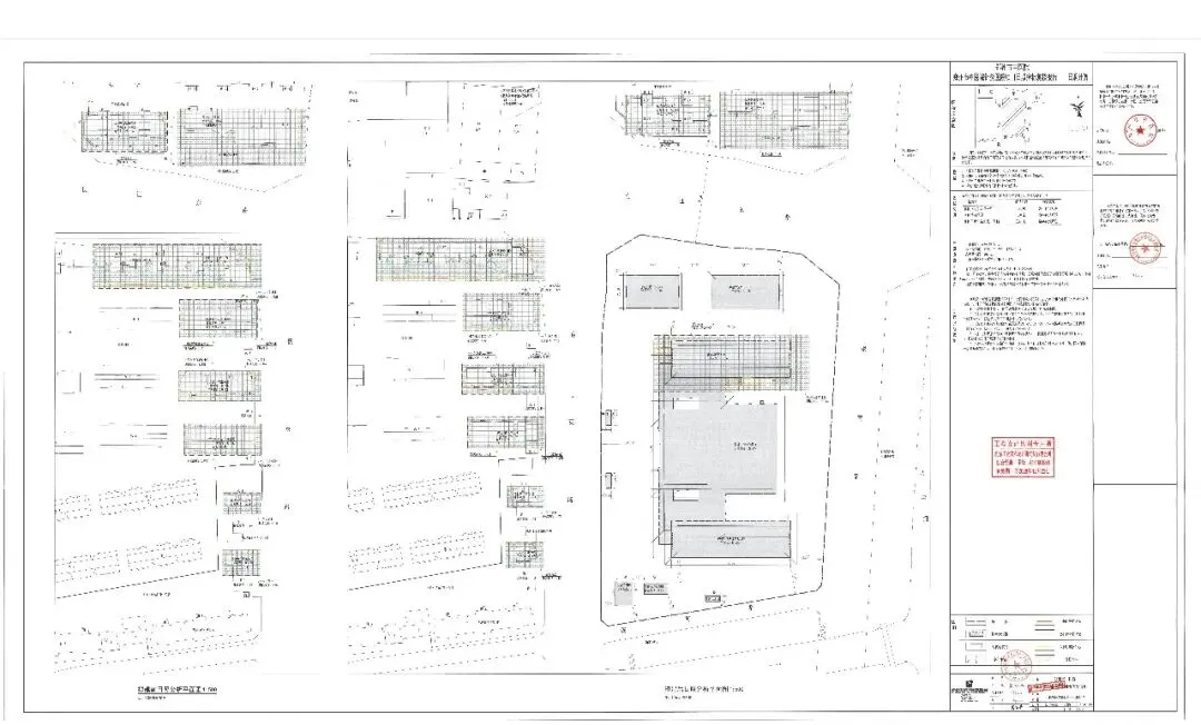
但是招标启动设计,根据招标信息,这里建设的已经变成了郑州市中医院针灸医院项目。

建设用地48.89亩,总建筑面积是10.9万平方米。
其中地上建筑面积6.5万平方米,地下建筑面积4.4万平方米,床位500张,包括急诊部、门诊部、住院部、医技科室、药剂科、保障系统、业务管理、院内生活等8项基本用房。
这一次的报建规模是11.2万平方米,建设单位则是郑州市中医院,停车位1046个。
其实对于这个片区来说是一个不错的消息,毕竟周边确实缺医院。
新医院的建设,只要能够落地,至少能够解决一部分人的需要,总比一直停在这里,要好得多。
随着医院的开始建设,以及建设在新郑的新粮库启用,整个片区的开发也将进入快速发展阶段,毫无疑问,后续也会有住宅用地陆陆续续入市,二环内,也会多处更多的选择。

对于友谊在这个区域购房的人群来说,毫无疑问,会多出来更多的选择。期望的是能够有实力的开发商,能够统筹一下,不要把这一块不错的地给浪费了,做些好的产品。
