此处所言的新盘,主要说的住宅楼盘;主要说的是还没开盘的盘。3、已拿地、已呈现规划(鸟瞰效果图)但未推广入市的楼盘。大来郑东壹号院,绝对是目前郑州楼市呼声最高、期待最高、档次最高、户型面积最大的楼盘。最关键,他是“准现房”销售。目前呈现的实景——大门、会所、景观、车库等等完全是顶级的。其大门、会所、景观示范区已经开放,呈现质量可圈可点。这是一个大盘,共有18栋小高层、高层楼栋,总套数有1349套。高层产品面积段在103-143平米之间;小高层面积段在134-175平米之间。整体定位为刚需、刚改和部分改善。
位于滨河的蝶湖书院,已经不算是新盘了,因为他入市很久了,而且目前已经主体封顶,今年年底交付。此盘,绝对算是滨河当下TOP盘,从其169平米、226平米、286平米的户型面积定位就可看出,绝对是豪宅改善面积段。2026,想在滨河买豪宅改善,买他。——其实他的价格(单价)并不算贵。银河湾,在大来郑东壹号院的东侧,一路之隔。
他已经是现房,一直没开售。
这个盘,容积率3.99,共四栋30-31层的高层、一栋11层的小高层。
传说,其户型面积主要为180/200/260平米。180平米起步,很豪。
这个盘,我也说过很多次了。
至于今年会不会开盘,我也没准确信息。
只能说明开发商不差钱儿。
万祥紫境,也在滨河。就在前面说的蝶湖书院的北侧,一路之隔。他距离蝶湖更近,距离北边那个河更近。我很喜欢这个位置!目前项目还未入市。他容积率为2.49,共规划8栋楼——其中1栋是25层高层,其他7栋是11、17层的小高层。整体共有三个户型面积段:139/159/179㎡的四房。此盘目前在争分夺秒施工中。马上要入市,大概率今年上半年要实现开盘销售。这个盘,位于目前炙手可热的高铁东站东广场片区。他就是新发展楷林智慧广场二期的住宅部分。目前,项目除了网上公示的整体效果图之外,并没更多信息呈现。从规划看出,二期包含三栋150米的写字楼、7栋住宅楼和临商鼎路的商业所组成。他绝对算是老盘了。主体结构已经封顶。后来因未知原因,停工。这一停,近8年时间。前一段,东区管委会网站公示了其建筑变更方案,项目是否要启动?是否要重新入市销售?这个盘,位于常西湖北片区华瑞紫韵城四期天园的南侧。此盘为常西湖片区第一个四代宅。华瑞地产倾注心血,誓立做片区TOP改善盘。项目由孙虎大师亲自操刀设计,打造全国首个建筑、景观、公园一体化设计项目。项目容积率2.49,共规划8栋住宅楼。其中2栋高层、6栋小高层。据说户型共三个面积段:143、160、180平米。此盘就是大名鼎鼎的五龙口兴瑞项目,位于郑轨云麓北侧。共规划4栋26层高层和2栋17层小高层,总户数353户。此盘是南阳路老盘台隆合园的二期。将由龙湖代建开发。项目总占地约127亩,容积率3.49,共规划15栋28-33层的高层产品。项目位于北龙湖南片区龙湖中环南路北、龙湖中环西路东,占地面积约41.5亩,容积率2.49,总户数425户。从规划方案来看,国润湖畔是一个四代宅项目,规划为10层、18层、20层的小高层产品。目前户型面积未知——144平米以下的户型有244套,占比58%。这个盘,就是之前河南首个现房销售试点项目。目前是否会提前销售,未知。项目占地约26亩,容积率2.99,共规划5栋楼,共414户。传闻其户型共有4个:105和110平米的三房;125和139平米的四房。这个盘,就是曾经郑州神盘盛澳金尊府的后期。大概率会以新案名入市。
项目占地很大,约110亩。
块地规划为11栋高层+4栋洋房。先开发地块北组团。
北组团产品面积段为110—160平米之间,大概率为精装交付。
南组团的户型产品面积段会更大。
社区配置有66米宽的大门和3000平米的会所。期待值很高!
目前项目已经动工。随后会入市,今年也会实现开盘。
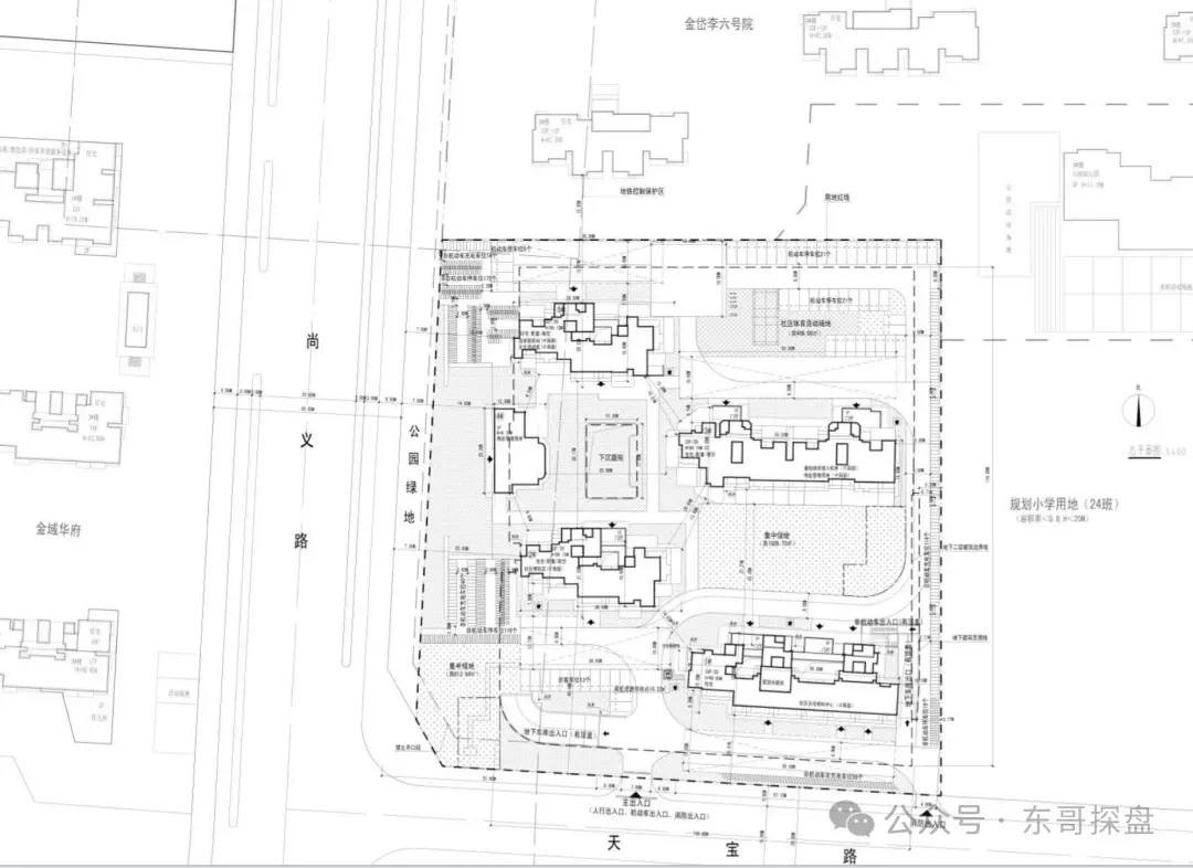
项目规模不大,占地约23.9亩,仅规划了4栋高层,共473户。目前了解到的信息,其户型面积段在106-139平米之间,与信达棠樾七里二期的产品面积段重合。两者之间产生直接竞争。他位于管南富田城九鼎华府片区——严格来讲他就是富田城九鼎华府的后期用地,只是后来由管城平台公司建中公司拿地了。项目占地约53.6亩,容积率2.58,共规划11栋16、17层的小高层产品,共691套房源。据闻,其户型有129平米的三房和160平米的四房。均为四代宅。16、锦桐居:
锦桐居这块地,在白沙河南省实验中学初中部的西北方向,蓝城江南里的西边,冠景上院的东边。
这个项目,地约53亩,容积率2.49。共规划布局10栋楼,其中2栋27层高层、8栋9-11层小高层。户型面积段未知。
作为绝对的河南省实验中学学区房,它值得众人期待和关注!
17、正商惠济北项目:
此盘,紧邻惠济区正商家河家。北侧就是运河源项目。
项目占地约61.4亩,容积率2.49,共规划11栋小高层和洋房产品。
目前项目户型面积段未知,从鸟瞰图可以看出是绝对的四代宅。
其最大的亮点是南侧的公园,片区里难得的低密住宅。
这个盘,值得期待!
除了以上明确有规划效果图信息的新盘外,还有其他今年要入市的盘:
18、鑫联壹号院:
19、万科山河道3期:
20、亚星观樾2期:
21、绿都地产站马屯新项目:
22、屹立置业南三环项目:
23、万祥滨河新项目:万祥紫誉
24、中建七局滨河新项目:
25、金投申泰中原印象二期:
26、金投豫发豫园二期:
27、纬地地产项目:
28、汇泉西悦城9号院:
29、高新地产高新新城项目:
30、常西湖香山书苑项目:(恒大林溪郡北侧)
31、裕华城三期书海苑:
他们的具体产品和规划信息未出,本文就不详说了。
还有板上钉钉的、今年会土拍、会入市的新盘:
32、中超总华润润府三期:
33、华润北龙湖33号地项目:
34、保利金水北三村新项目:
还有之前城投公司拿的地,至少还要开发6个地块项目。
也就是说,目前确定的已经有40个新盘要入市。
还不包括随时新增新拍地块新盘。

2026,郑州楼市还会很热闹。
百家争鸣,百花齐放。
谁会成为最后的赢家?
拭目以待。
来,坐好小板凳,一起围观!
本文完。