一、核心区位
郑州东站核心区,依托国家级米字交通枢纽,联动郑东新区先进制造业开发区,打造“交通枢纽+商贸办公+科技创新”产业格局。

二、多维交通
地铁:距3/8号线地铁站仅100米
高铁:距郑州东站1.5公里,米字高铁辐射全国
快速路:2km内接驳东三环、陇海快速路、东四环
高速/机场:距京港澳高速口1.5公里,迅达新郑国际机场
三、业态规划
构建“办公+”自循环商务生态,融合办公、酒店、精品商业、汽车科技展厅等多元业态。
1#楼(15F):10-15层为知名酒店;4-10层空置(标准层1434.6㎡,层高3.6m,4部电梯);1-3层可做汽车展厅、运动场馆、主题餐饮等商业(1层2820.74㎡,层高5.4m;2层3623.98㎡、3层3632.77㎡,层高均4.5m)。








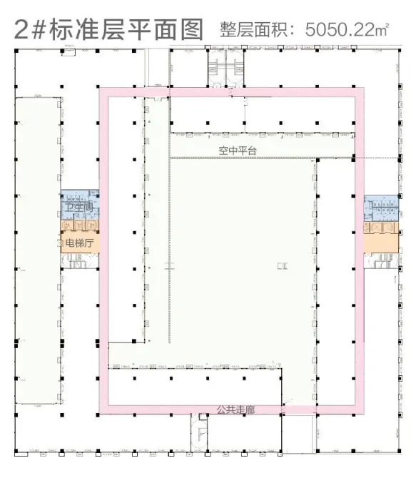
2#楼(5F):4-5层可租(标准层5050.22㎡,层高3.8m,5部电梯);11米挑高大堂、L型布局,360°环幕视野,8.1m/10.3m阔绰柱距,空中平台会客厅/花园,空间可灵动分割。






停车位:共821个(地上167个、地下654个,含充电车位124个)
四、核心卖点
区位:高铁东广场核心,郑东新区新质生产力产业高地
交通:3/8号双地铁换乘,多维立体交通路网
产品:集团全自持,实景现房即租即用,200-5000㎡办公、100-3000㎡商业空间可定制分割
【咨询热线】152 2509 9459(微信同号)
185 7413 8287(微信同号)