“博士+实力学长+老八校硕士状元”团队
禾图--一家致力于分享干货与正确建筑设计价值观的教育平台,坚决反对聘用临时研究生主讲,拒绝挂名式指导老师,每一位主讲都需要经过层层选拔与多年教学磨练,坚持小班教学,26考研禾图上岸率超70%,禾图出品,只出精品!

前言
郑州大学作为211综合类院校,其建筑学员并不是特别优秀,但随着行业下行,大多数考研学子考研目标从最开始以专业为目的变为了更加看重院校的综合实力。
由于郑州大学地处中原地区,河南考生较多,同时在机构的鼓吹之下,郑州大学的难度也达到了历史新高,为帮助27打算备考郑州大学的小伙伴顺利上岸,禾图特推出郑州大学一对一计划。
禾图在三小时建筑快题备考中颇有经验,原先马克笔上色及A2图纸绘图方式早已被各大高校所淘汰,然而很多机构仍然奉行六小时套路式模板化教学方式,所有考生都是统一批量生产的,那请你思考一下,你如何才能在众多考生中脱颖而出呢?大家风格是统一的、画出来的深度也都差不多,那凭什么你能够顺利上岸呢?

郑州大学压分吗
许多报考郑州大学的同学说郑州大学专业课压分,快题考试许多同学只得了70分,理论分数也不高。
那你有没有想过,既然郑州大学压分,为什么还会有140分高分呢?

2026年郑州大学考了一道90000平方的建筑,这在全国历年考研中也是极其罕见的,对于这种题目,除了要对各种建筑类型十分熟悉之外,还必须掌握除建筑之外的规划、景观设计相关的知识。
然而很多备考生还沉浸在马克笔的颜色怎么配,这颗树怎么画等之类无关于设计的皮毛知识。
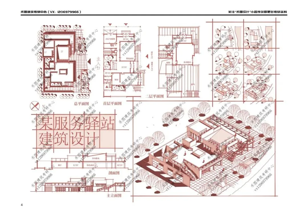
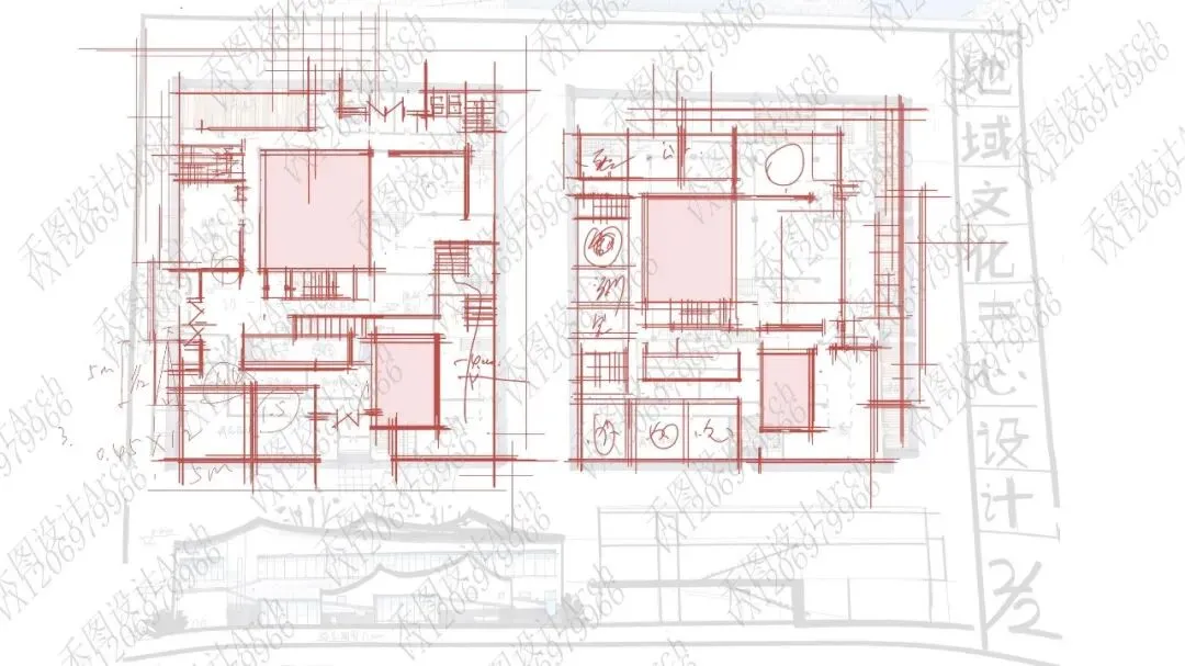
郑州大学2026快题设计部分解析示范


禾图快题一对一课程优势
授课主讲全程跟踪指导
可根据学员学习进度动态调整课程内容,去除不必要的杂课,根据学员特点针对性授课。康康学长不仅擅长建筑设计,同时对于室内设计、景观规划设计也有涉猎,并有相关的教学经验,这对于设计教学来说可以根据学员需要缺啥补啥,现在的建筑学考试并不局限于建筑本身功能的考察,而是建筑内部环境与外部环境同时对人与空间关系等层面的综合考察。

康康学长履历
HE·TU DESIGN 手绘/方案/快题设计主讲
精通室内、景观、建筑设计方案
全能型设计讲师
职业建筑师
禾图设计教育教学负责人
建筑学硕士
夏克梁边走边画沈阳分社会员
九年授课经验
2018-2019 庐山艺术特训营景观设计讲师
2019-2020 庐山艺术特训营室内设计讲师
2020-2021 庐山艺术特训营建筑快题主讲
2021-至今 禾图设计建筑快题主讲
郑州大学25初试快题140分状元
清华大学2026初试138分状元
禾图建筑、理论教材主编
禾图设计课程体系研发负责人
表达与设计全方位提升
快题表达涉及到手绘的专业知识,幸运的是康康学长在教授快题课程之前有四年的手绘教学经验,并画过许多钢笔画,对艺术方面也深有研究。能够画出完整的效果图只是基础,怎么能在最短的时间内将效果图画的更加有氛围感同时能够真实反映设计者的想法是比较难的。例如怎能能用三五分钟时间画出所设计建筑的空间效果图等。
设计部分的学习也需要掌握设计逻辑与核心技巧才可以,例如平面设计过程中怎样同时考虑造型的设计,平面空间形式单一,是许多备考生的通病。也有不少同学在备考过程中抄绘大量的案例,但是抄绘后发现并没有太多的提升,或者提升较难,其根源就在于对设计逻辑一知半解。
例如要想写出一篇好的文章,只是会背诵一些名言名句或者优美的词句是远远不够的,写好文章要懂得写作逻辑,同时懂得行文技巧,不仅要有行文逻辑,同时也要有核心思想,八股文永远得不了高分,设计也是,对于备考清华的同学来说,懂得设计逻辑只是初级要求,还要有设计的核心思想与内涵。而这些是其他针对性机构所教不了的。
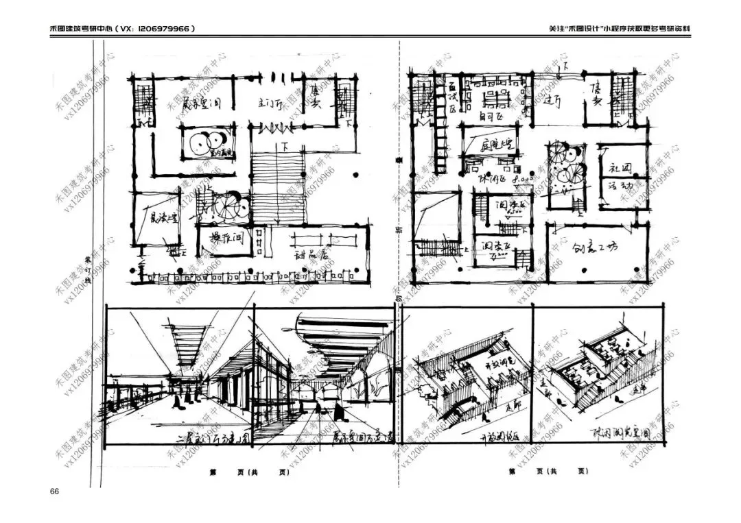
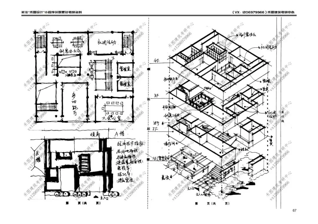
郑州大学2025三小时140分快题原卷


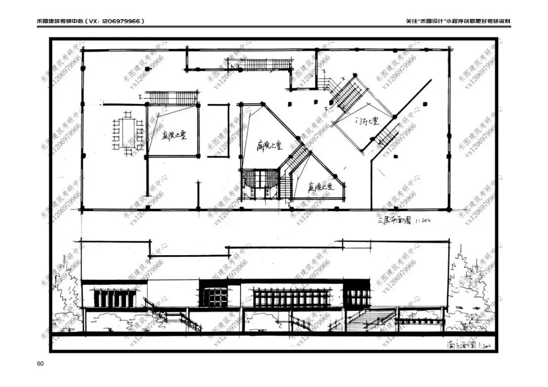
康康学长快题作品(清华、同济快题作品)
























课程灵活安排
对于备考郑州大学的同学来说,需要学习的任务量比较大,理论的学习、英语的学习都需要占用大量的时间精力,机构固定的课程可能会打乱复习计划,一对一针对课程可根据学员学习计划灵活安排授课时间,并随时根据学员学习情况进行动态调整,这样就能够做到各科的学习齐头并进。
康康学长造型设计素材

康康学长快题分析课
康康学长解题示范课
康康学长评图课堂
康康学长成图示范课堂
禾图理论试听
康康学长学员图纸改图示范展示








































课程收费标准
郑州大学协议课程可试听1小时课程后再选择报名
为保证教学质量帮助学员顺利上岸,禾图郑大一对一协议全程班课程最多仅收取5名学员。授课方式为一对一单独授课,协议班快题授课时长不低于80课时,多则不限;理论授课课时不低于80课时。
郑州大学快题一对一协议班
课程售价24000元
郑州大学理论一对一协议班
课程售价12000元
协议班承诺
未达到录取考生平均分退90%学费
郑州大学建筑快题、理论一对一灵活课程
(按课时收费)
400元/课时(1小时)
10课时以上350/课时
20课时以上300/课时
联系我们

课程咨询


康康学长
微信号|hetusheji1206
禾图媒体·感谢关注






【禾图·一家致力于干货分享的学习平台】
========================设计教育领航者哔哩哔哩|小红书建筑考研学长禾图建筑手绘沈阳校区禾图设计网络学院
禾图建筑考研理论建筑考研交流qq总群
707715006