


去年,我们在贵阳认识了马晨稀。
这个说话爽快、脑子里装满了想法的年轻人,带着他的X-Park找到我们。第一次合作,我们在健身房外立面做了“未完成”的脚手架,他说:“健身房不该是封闭的铁盒子。”我们都想知道,空间能不能不只是锻炼的地方,还能让人和人产生更多连接。所以当他在郑州拿到这个新场地,又来找我们的时候,我们没多问,直接答应了。这种信任,是合作最舒服的状态。
Xpark新店藏在郑州一座老厂房改造的园区里,与NBA HOOP PARK,羽毛球馆一起组成了悠犸空间。马晨稀保有一如既往的理念:“不推销、不制造焦虑,让大家愿意来、待得住、练得开心。”他说得简单,但我们知道,要把这些落到空间里,得花些心思。

▲项目概览© IN-FIELD studio
项目背景
厂房首层架空为停车场。健身房共两层,一层包含接待区、训练区、更衣淋浴及配套服务;二层为专项训练区、拍照间、多功能室及办公室。原始空间拥有近11米的挑高区域,但同时也面临层高落差大、结构柱多、功能区复杂等挑战。这是与主理人的第二次合作。延续贵阳Xpark坐标公园的默契,我们不再仅仅思考“如何做一个好用的健身房”,而是追问“空间能否像催化剂一样,加速处在空间中的人身体与心理的蜕变?”

▲项目由厂房空间改造而成© IN-FIELD studio
设计理念
身体的反应实验室
我们将整个空间定义为一座“身体的反应实验室”。
“反应”意味着变化的发生,肌肉的撕裂与重建,耐力的积累与突破,体能的量变与质变。
“实验室”暗示着一种过程性的的状态,每一次训练都是一次实验,每一次突破都是一次成功的结果。
而这次的设计,不是创造一个“完成时”的完美空间,而是构建一个 “进行时”的过程性容器。它模拟并支撑着从混沌到清晰、从压抑到释放、从自我审视到自我肯定的路径。

▲草图© 未见筑
场所营造
接待区
接待区以木饰面营造温暖的第一印象,搭配无机涂料与金属板台面,形成柔与刚、暖与冷的对冲。

▲接待区© IN-FIELD studio


▲咖啡吧台© IN-FIELD studio
入口区
健身房入口空间以深色无机涂料压暗氛围,轴对称入口立面,在物理和心理上完成一次“进入”的仪式。


▲入口区© IN-FIELD studio
首层训练区
训练区墙面以镀锌格栅作为立面装饰,保留工业质感的同时兼顾通透性,一定程度上削弱了座位区在通道上的紧促感。大面积EPDM运动地胶耐磨防滑,有效吸收冲击力,保障训练安全。镀锌格栅顶面与地面形成呼应,强化力量感与秩序感。

▲保留工业质感的同时兼顾通透性 © IN-FIELD studio
空间中心近11米挑高的区域,是整个“反应实验室”的核心。大面积的米色和灰色砖墙、暴露的裸顶面、交错的金属管线,都保持着原始、粗粝、未完成的样貌,只为让使用者在此专注最真实的自我。

▲空间中心近11米挑高的区域© IN-FIELD studio

▲重训区© IN-FIELD studio
二层训练区
二层空间延续一层的调性风格,大面积米色砖墙搭配原始顶面裸露结构。保持空间的质朴与真实。我们在墙面进行开洞,让阳光自然洒入,是整个空间不再是一个密闭的盒子,而是充满通透感的开放场域。有氧区与篮球场以通透玻璃围合,视线可以毫无阻碍地穿透——当你在跑步机上挥汗时,能看见楼下篮球场的对抗。这种空间互联,让不同项目的训练者彼此感知,共同构成一个流动的能量场。

▲二层空间© IN-FIELD studio


▲器械区© IN-FIELD studio
拍照间
延续Xpark贵阳店,我们在这家店同样设置了造型室,外表采用温暖的木饰面,与训练区的工业质感过渡,内部一整面墙的落地全身镜和一面高角度的俯视斜镜,方便健身者多角度观察和记录自己的训练成果。作为独立房间,为会员提供了足够的私密性,避免社交尴尬。

▲拍照间© IN-FIELD studio

▲拍照间内部© IN-FIELD studio
更衣间&淋浴间
更衣间和淋浴间材料主要使用白色格子砖搭配镀锌格栅,通过木质家具打破空间冰冷感觉,提升使用的舒适度。

▲更衣间&淋浴间 © IN-FIELD studio
文章写到这儿,想回到开头那个人——马晨稀。从贵阳到郑州,他的想法没变过,不靠销售套路,不靠高压氛围,就靠一群真正热爱运动的人,慢慢把场子做起来。我们做的,不过是把他的话、他的想法,用一种看得见的方式呈现出来。

▲周边展示区© IN-FIELD studio
信任这件事,说起来虚,但在我们这行,特别实在。第一次合作靠缘分,第二次合作靠的是彼此都觉得,跟对方一起干活挺顺的。方案讨论不用绕弯子,现场问题可以直接说,大家心里都清楚,最终是为了把这件事做好。希望郑州的朋友们,有空来这个“反应实验室”转转。练不练都行,进来坐坐,喝杯咖啡,看看别人挥汗如雨,也挺好。

▲细部© IN-FIELD studio
项目图纸

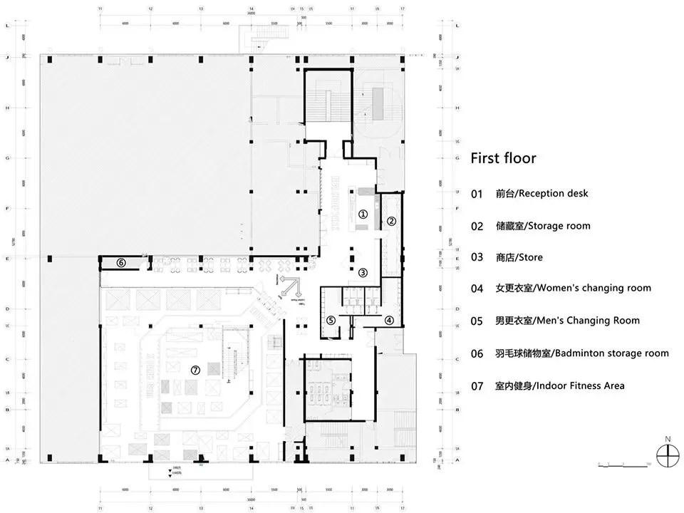
▲一层平面图© 未见筑

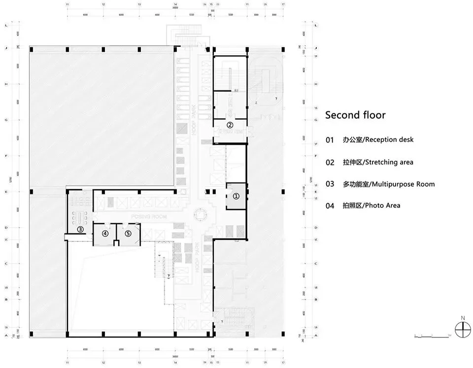
▲二层平面图© 未见筑


▲剖面图© 未见筑
项目信息
END 联系我们:sheji2415 投稿邮箱:youtharch@163.com