当前位置:首页>郑州>袁广阔丨殷享攸存:郑州商城大型祭祀遗存的新发现与研究

袁广阔丨殷享攸存:郑州商城大型祭祀遗存的新发现与研究

  • 2026-04-01 19:48:10
袁广阔丨殷享攸存:郑州商城大型祭祀遗存的新发现与研究

XIA CULTURE

摘  要:郑州市文物考古研究院在郑州商城西北部河南省体育场区域揭示出一处规模宏大、结构完整的商代早期祭祀遗址,遗址总面积约1600平方米,拥有环壕、夯土围墙、建筑基址及大型祭祀场等系列遗迹。这是首次在郑州商城范围内展现出由防御设施、祭祀空间与附属建筑共同构成的封闭式祭祀院落体系。祭祀场形态与以往商城所见迥异,牺牲种类涵盖人、牛、羊、猪等,反映出祭祀活动的多样性与复杂仪式。该祭祀遗存生动展现了早商社会祭祀制度的组织化与仪式化程度,为理解商代早期宗教信仰、族群结构与社会权力运作提供了关键实物依据。

关键词:郑州商城;“祭坛”;祭祀场;早商社会

作者简介:袁广阔,男,首都师范大学历史学院教授、博士生导师,主要从事中国古代文明起源与国家形成研究。

基金项目:国家社会科学基金重大项目“基于考古发现的夏文化研究”(25&ZD049)。

郑州商城作为商代早期的都城遗址,是探索中国早期国家形态、都城规划与礼制起源的核心考古遗存。长期以来,考古工作者虽在城内发现了多处祭祀遗存,但多为零散分布的祭祀坑或局部遗迹,缺乏完整的空间结构与功能组合,难以系统揭示早商祭祀制度的整体面貌。近年来,郑州市文物考古研究院在商城西北部的河南省体育场区域发掘出一处规模宏大、结构完整的商代早期祭祀遗址,首次展现了由环壕、围墙、建筑基址及大型祭祀场构成的封闭式祭祀院落体系。这一发现不仅为理解商代社会结构、宗教观念提供了关键实物资料,也对深入探讨郑州商城作为商代早期亳都的性质、城市功能以及王朝依托王都资源,构建其神圣统治秩序与礼制具有突破性意义。

一、空间构建:西北祭祀场的形成过程

从考古发现来看,祭祀场的形成过程是先营建仪式空间,后建设核心“祭坛”,最后开展祭祀活动。根据发掘区T1203北壁剖面,地表向下约1.5米为现代回填与淤土层,其下地层可分为三层:①层为浅黄色淤土层,土质松软,属现代文化层;②层出土唐宋时期的泥质灰陶、瓷片等,属唐宋文化堆积,表明商代遗址已经遭到破坏;③层(深0.3—1.15米)为灰褐色土层,出土陶片、兽骨、石器等遗物,为商代人类活动所形成,堆积厚度呈现西部薄东南部厚的特点。祭祀遗址位于该层,考古发掘显示,整个祭祀区的规划布局遵循着严格的设计与规划原则。

(一)院落构建

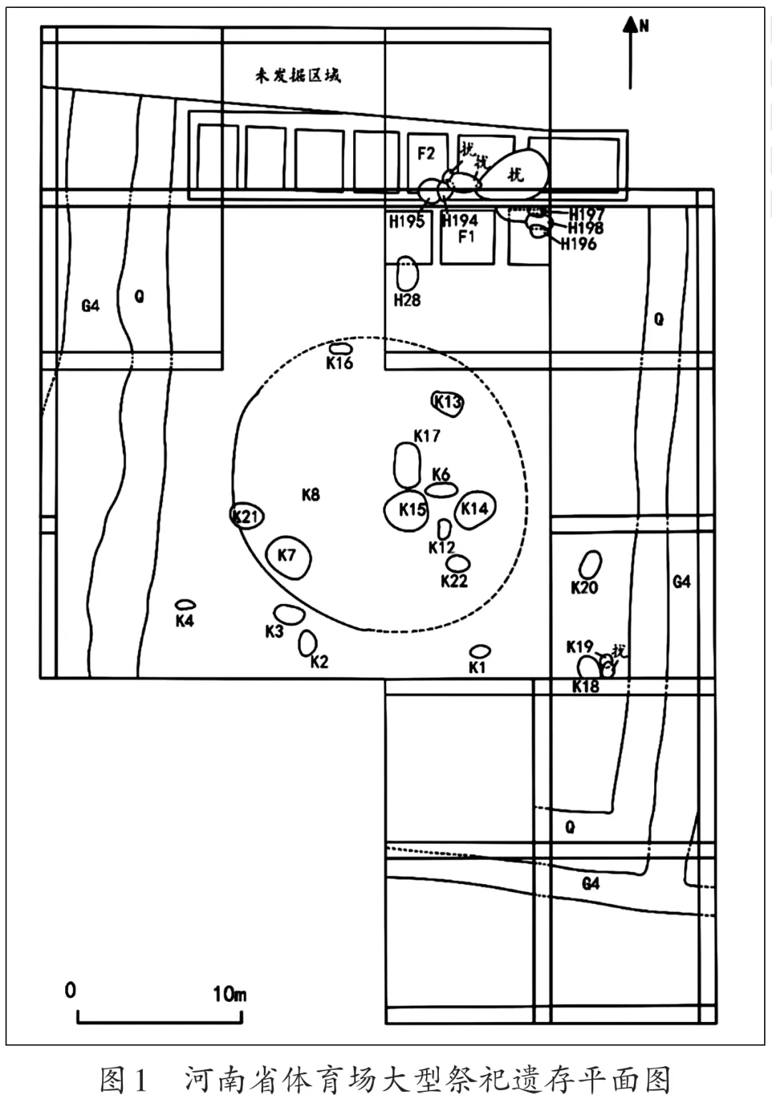
院落整体为长方形,在其北部地势较高处发现的两处大型建筑基址(以F2为代表)及其附属的围墙、环壕系统,构成了整个祭祀区的空间基础。F2为东西向长方形连排式建筑,面阔7间,其中第七间面积显著大于其他房间,显示出其可能具有特殊功能。建筑基址经过夯筑,地基坚实。我们推测每一间应该都供奉有重要的祖先神灵。第七间面积显著扩大,可能是最高等级祖灵的供奉场所。该建筑很可能承担着“宗庙”的功能。夯土围墙平面呈方形,环布于建筑基址的东、西、南三面,与建筑基址共同围合出一个面积约1600平方米的封闭院落。围墙外侧设有规整的壕沟,沟壁陡直,深度可达1.5米,形成“主体建筑—围墙—环壕”三重结构,院墙确立出祭祀空间的边界,将祭祀区域与世俗生活空间严格分离,强化了祭祀活动的神秘性、专属性与权威性。

(二)“祭坛”与祭祀坑

在祭祀院落内发现了较多的祭祀坑,面积大小不一。其中K8为主“祭坛”,时代最早,面积也最大,目前保留面积逾100平方米,应当是破坏后留下的残存部分,实际范围为北到K16、K13,东到K14,因此复原面积约200平方米(图1)。这一认识也得到了发掘者的支持,发掘过程中他们对这个中间区域的文化堆积进行了细致而严谨的处理,首先,确定了这个堆积的分布范围,文化堆积的土质土色差异非常小,区域之间的颜色也大略相同,并且绵延跨越了好几个探方。经过对这几处疑似灰坑周密的审视,发现这个看似绵延分布的堆积应该是一个大的遗迹,且分布不均匀,似乎边缘薄些。

“祭坛”K8系多层陶片平铺而成,其间夹杂有兽骨、卜骨、朱砂陶片、人骨和动物残骸等,这些陶片没有拼合性,是由互不相属器类的碎片堆积起来的,并不是祭祀时完整陶器摔碎后散落的。“祭坛”现保存高度仅有0.3米。从目前发现的祭祀坑和祭坛底推测,“祭坛”原来是有一定高度的,原始平面已经被破坏,依据周边祭祀坑残存底部推测,破坏高度至少有0.5米。祭坛内铺砌的陶片数量庞大,形成厚厚的陶片层,器形涵盖鬲、深腹罐、甗、斝、爵、大口尊、簋、罐、盆、瓮、壶等,几乎囊括了商代早期日常生活与礼仪活动中的主要器类。复原面积约200平方米的圆形“祭坛”,可能蕴含着古人对“天圆”的宇宙观模拟,是祭祀活动本身成为沟通天地、神圣空间的体现。

“祭坛”K8周围发现25处祭祀坑,其中部分祭祀坑打破“祭坛”,说明是先有祭坛后有祭祀坑。“祭坛”K8与其周围的祭祀坑共同形成一个祭祀场。祭祀坑又分为坑状堆积和片状堆积,坑状堆积多为竖穴土坑结构,其内可见完整的动物遗骸和人骨。

目前考古发现祭坛周边的祭祀坑如下:K2、K3、K4、K7、K21分布于西南部,K12、K14、K15、K17、K6等分布于东部。其中K14为片状堆积,平面为椭圆形,长径2.4米,厚约0.05米,堆积为灰褐色,南部出土大量陶片、卜骨、石刀及少量动物骨角,北部有一具完整的婴儿骨架,呈俯身状平置于堆积中。K2为竖穴土坑式,平面近椭圆形,壁微弧,近底渐平,坑口长径1.5米,坑底长径1.2米,深0.3米。坑内填灰褐色五花土,土质较软,坑底出土呈跪卧状完整野猪骨架,头向北,四肢叠于腹下。K3也为竖穴土坑,坑底有一副完整的野猪骨架。

“祭坛”范围内出土的卜骨数量较多,多采用动物肩胛骨,并经过修整,可见清晰钻灼痕迹。如标本H113∶9,黄褐色,为牛肩胛骨,卜骨上可见密集的钻孔,排布不规律,多圆形圜底,深浅不同,个别钻孔可见灼烧的黑色印痕。标本H155∶1,灰褐色,为牛肩胛骨下端残部,卜骨上可见零星灼烧钻痕。

院内没有其他遗存发现,这种以“祭坛”为中心、周围环绕多种类型祭祀坑的布局,清晰地展示出主祭坛是祭祀仪式的核心,是举行燔燎、瘗埋等祭祀仪式的场所。层叠的陶片保证了祭坛坚固,大量的祭祀坑、丰富的牺牲遗存(人、牛、羊、猪)及大量卜骨,表明这里曾举行过多次规模盛大的祭祀活动。而周围的祭祀坑则是仪式中不同时间、不同祭品最终“瘗埋”的专门场所。

总之,整个区域由环壕与夯土墙环绕,形成神圣禁域,将祭祀活动与日常空间严格区隔开来,强调了仪式的庄严性

二、年代判定与遗存性质

(一)年代判定

这是郑州商城第一次发现祭坛类建筑遗存,从遗址文化分期看,祭祀区域根据地层堆积关系和遗物类型,该祭祀场的存续年代可明确界定为二里岗下层晚段至二里岗上层一期,其地层关系与陶器特征为此提供了清晰的证据。

在二里岗下层晚段,祭祀场始建并使用,早期堆积(如G4③)中出土的陶器组合,具有鲜明的时代特征。鬲口沿外卷,绳纹印痕较细,整体形态尚未脱离二里岗下层早段的某些风格;深腹罐为深直腹或微鼓腹;大口尊颈部短促,肩部突出;深腹盆口沿内敛,腹部较深,这些都是二里岗下层晚段的典型特征。

二里岗上层一期,祭祀场在此阶段继续沿用,其代表性遗迹单位(如K14、G4②等)出土的陶鬲风格显著改变,粗绳纹成为主流装饰(如K14∶41),胎体普遍增厚,口沿形态以折沿方唇为主,器身往往与粗绳纹、圆圈纹(或称“圜络纹”)结合,形成该期典型标识;甗出现折沿双唇式样;大口尊颈部明显加长,口径大于肩径(如标本G4②∶26);爵、觚等酒器仍延续使用。二里岗上层一期陶器群在延续部分传统器类的同时,整体呈现出纹饰粗犷化、器类多样化、鬲、甗等三足器形态挺拔的显著趋势,反映出制陶技术的规范化与礼器组合的稳定性。这些器物特征的演变脉络清晰,与郑州商城典型的二里岗上层一期陶器特征完全吻合。这两期器物群前后衔接,证明祭祀场在二里岗文化中、晚期持续用于祭祀活动。

(二)遗存性质

中原地区考古发现的圆形祭坛时代较早,仰韶文化时期的双槐树遗址就有发现。二里头文化时期的二里头遗址也有发现,如其宫殿区北部和西北部一带,集中分布着一些与宗教祭祀有关的建筑和其他遗迹。这些建筑基址或为坛类建筑,呈东西向排成一线。发掘者指出,所谓祭坛“主要是平面大致呈圆形、凸出于地表之上的土坛,坛径一般在5米以内。坛上布列着一圈或二圈圆形‘土墩’(在坛体上挖出大小相若的圆坑,坑中填不同于坛体的土形成土墩)。坛面和坛下有路土,坛的周围是平整干净的场地”。

商代的祭祀遗存中发现有建筑基址或祭台(坛)的有两处,分别是江西樟树吴城遗址和河北藁城台西遗址。吴城遗址是商时代赣水流域某一方国都城及其政治、文化中心。吴城遗址祭祀区位于城址中心,主要由红土台、道路、建筑基址、红土台座、柱洞群五大部分组成。红土台基本上处于整个吴城遗址的中轴线上,台地平面略呈“T”形,西端有建筑基址和红土台座,南侧有道路,西南角有密布的柱洞,高出周边地区1—1.5米,形成了一处较为平整的略带坡度的宽广台地,面积达6500平方米。建筑基址(F1)为圆角长方形,面积约30平方米。门道两端各有一构造特殊的门墩,两门墩内侧各有一个柱洞。整个基址共有19个柱洞,排列一周。红土台座南北长1.6米、东西宽0.55米,在红土台地边缘西南侧以及红土台座的东南侧,共分布着大小不一的柱洞上百个。发掘者从这些遗迹关系的布局推测,道路、建筑基址、红土台座、柱洞群和红土台地有机地构成了一个不可分割的整体,组成了一个大型的宗教祭祀场所。对于祭祀的性质,发掘者认为由于红土台地位于整个城址的中轴线上,可能属于宗庙、社稷等的“内祀”。与河南省体育场的郑州商城祭祀遗存比较,二者在城市位置、形状方面都不同,性质也应当不同。

藁城台西遗址是河北石家庄地区商代中期偏晚的一处大型遗址。1973年考古工作者在房基东侧发掘了4座祭祀坑(编号分别为H82、H83、H76和H104)。其中H82和H83平面呈长方形,H76略呈平行四边形,这三个坑分别埋牛、羊、猪三牲。H104呈圆角长方形,内埋3具人骨架。两具为成年男子,一具为14岁左右男子。报告推测这3个人牲是被捆绑后活埋的。藁城台西遗址祭祀坑的年代略晚于河南省体育场的郑州商城祭祀遗存。这些祭祀坑平面形状多为方形,深浅也不一致,虽集中分布,但不是同时形成的,其特征与河南省体育场的郑州商城商代祭祀遗存接近。两者均将祭祀活动与特定建筑(宗庙)关联,均使用人牲与动物牺牲,反映了共同的祭祀观念。但台西遗址遗存规模小、结构简单(仅有祭祀坑),而河南省体育场的郑州商城遗址规模宏大、延续时间长。关于藁城台西祭祀遗存的性质,宋镇豪认为“疑此为邑内宗族或家族特置的祀先祖祭所”。河南省体育场商代大型祭祀遗存的祭祀形式、种类、规模、祭祀坑的数量与祭祀方式皆为此前发掘所未见,其位置又位于早商亳都城外的西北部,存在为商代早期某个重要族邑的祭祀场所的可能性,它表明在早商时期,以血缘为纽带的“族”仍是社会的基本政治单元,这些大族拥有自己相对独立的祭祀中心和经济基础。商王朝可能正是通过控制或联合这些强大的族邑来实现统治的。

此外,河南省体育场祭祀遗存的范围不限于目前考古发现的院落,发掘区仅是其中的一部分,其文化层仍在向外延伸,当与周边生产、生活区域紧密相连,这表明其祭祀活动很可能是为服务某个特定、重要的核心活动而存在的。除存在为某个重要族邑的祭祀场所的可能性外,也存在毗邻大型作坊区(如铸铜、制骨作坊)祭祀的可能性。《礼记·祭法》云:“有天下者祭百神。”因此,笔者倾向于该祭祀场区域是某个氏族祭祀祖先或进行其他活动的固定场所,围墙内的祭祀场和祭祀坑是屡次祭祀后的遗留。

三、祭祀遗址新发现的意义

河南省体育场商代祭祀遗址是近年来郑州商城最为重要的考古新发现之一。考古资料证明,早商时期在郑州商城有频繁的祭祀活动,各区域都遗留下来零散的祭祀遗存。该发现填补了郑州商城缺乏大型完整祭祀空间的空白,丰富了我们对早商时期祭祀方式的认识。体育场院落式祭祀场的发现,如同提供了一把“钥匙”,为我们理解郑州商城其他区域中发现的零散祭祀遗存,开启了一个全新的认知空间。

(一)从“点状遗存”到“空间布局”的转变

郑州商城祭祀遗存目前大量的考古发现都呈点状分布,东北部宫殿区内的夯土台基附近、内外城之间东南部、西北部、紫荆山铸铜作坊、南关外铸铜作坊、二里岗等地点均可见到大量祭祀遗存,可谓遍及内城、内外城之间。与此同时,从各区域的祭祀用牲、用器可以看出明显的等级差异,有高规格整牛祭祀、青铜器祭祀坑以及多具人牲与动物牺牲混合祭祀。但具体到每一个祭祀活动场所,则整体情况不详。以体育场完整的祭祀场为参照,可知这些祭祀都应有完整的分布空间。例如近期考古新发现张砦南街祭祀遗存群,包括夯土基址、陶器坑、动物坑、特殊人骨坑等,极有可能是在一个类似体育场祭祀场的、具有明确空间规划的院落单元内,按照祭祀礼仪的不同环节或等级需求进行的有意布置。夯土基址可能对应着祭祀主体建筑或祭坛,陶器坑、动物坑、人骨坑则分别代表了奉献祭品(礼器、牺牲、人牲)的不同形态与内涵。它们共同构成了一个功能互补、仪式流程完整的祭祀行为组合。尤其值得注意的是,张砦南街青铜器窖藏与这些祭祀坑距离较近,窖藏青铜重器很可能是该祭祀场所使用的核心礼器,在特定仪式后被隆重埋藏。再如,2019年在郑州商城内城西南角的夕阳楼片区发现一批长方形灰坑,形制较为规整,方向多东西向或南北向,集中分布却罕见有打破关系,多处坑内发现较多人骨和动物骨骼,并伴随着完整陶器、卜骨等遗物的大量出现,发掘者初步认定该区域可能存在较为长期、固定的祭祀行为。其周边也应存在一定空间的院落和庙宇。

体育场祭祀遗存将文献中所记载的“庙”“社”“坛”“坎”祭与郑州商城考古发现紧密结合起来。它以清晰的空间结构将文献记载中的祭祀礼仪转化为可观察、可分析的考古实证,极大地深化了我们对郑州商城祭祀体系及其社会功能的理解。其一,此前郑州商城虽发现大量祭祀坑,但始终缺乏与文献“坛”相对应的、具有明确建筑形态的礼仪空间。该发现填补了商城祭祀类型中“坛”的空白。其二,作为祭祀中心,该遗存为理解分散的“坎祭”遗存提供了整体框架。商城内外发现的大量埋有人骨、兽骨的深坑(如二里岗H111),其“瘗埋”特征与甲骨文“坎祭”记载高度吻合。其三,它整合并印证了多元祭祀形态,揭示了祭祀活动的复杂性。例如,宫殿区附近人头骨壕沟的发现,可能与“献俘告执”的社祭有关。郝本性认为:“据文献记载弹骨为用人头骨器皿饮酒,所以弹杀的可能最大。……商城人头骨饮器附近,出土有祭祀遗址与东周亳与亳丘陶文,而社除有免祸求丰收的土地神作用外,还是一处行刑、盟誓、献俘告执(或告禽)的场所。又根据该地为商城宫殿区,献俘告执(或告禽)有时要把敌人首级献到宗庙或到王宫向商王告捷,因此这百枚人头骨饮器又为判定亳社所在提供了佐证。”

因此,体育场院落式祭祀场的发现,促使我们将张砦南街等地的各类祭祀遗迹,从“点状遗存”重新整合为“空间布局”来理解,从而更深刻地认识到郑州商城的祭祀活动是高度组织化、制度化的,无论是空间分布,还是坑类形状、内涵都遵循着一定的礼仪规范。这极大地深化了我们对早商国家祭祀制度、宗教权力表达乃至都城神圣空间布局的认识。

(二)对商城北部功能区与“大邑商”格局的新认识

发掘者也认识到,“遗址位于郑州商城内外城之间,当是郑州商城重要的组成部分,或承担一定的‘区域功能’,应是郑州商城的祭祀场所之一”。体育场祭祀遗存也毗邻大型作坊区(如铸铜、制骨作坊)等。近年来,随着郑州商城北部基本建设的开展,该区域所发现的商代遗存越来越丰富,已充分证明它与商城不可分割,且很可能是商城某些特定的重要的手工业中心。

一方面,商城北部普遍存在丰厚且连续的文化堆积,这直接反映了该区域在商代长期、密集的人类活动。考古工作在郑州商城东西南北四面展开,发现内城以外约1100米范围内普遍分布着厚度介于0.5—2米之间的商文化层。历经三千余年的自然侵蚀与人为破坏,至今仍能发现大面积的遗迹与文化层,足见当时该区域人口聚集、活动频繁,形成了深厚的文化层堆积。这绝非边缘或附属地带的文化面貌,而是核心功能区长期发展的直接证据。另一方面,该区域集中出现了专业化、规模化的手工业“园区”,发现了多处功能明确的手工业作坊遗址:紫荆山的铸铜遗址、河南医学院第二附属医院铸铜作坊表明这里存在着高技术的青铜铸造业;省政协及豫剧团所在地发现的制骨作坊,揭示了骨器(包括饰品、工具等)的集中加工与制造;在纬五路中段等地发现的夯土基址,很可能与手工业区的管理、仓储或相关配套建筑有关。2002年,在商城北部偏西的河南省图书馆老馆院内进行的试掘,文化层堆积达4米多,出土较多陶片,陶器以泥质灰陶为主,夹砂陶次之,器形有鬲、大口尊、捏口罐、器盖、深腹盆、瓮、网坠等。纹饰以绳纹为主。骨器有骨料、兽骨块,其中一些兽骨有被切割的痕迹。这些作坊并非孤立存在,而是呈现出一定的集中分布态势,构成了一个功能齐全、产业配套的手工业生产区,为整个商城乃至更广大区域提供产品,是商城经济繁荣与物质保障的基础。

河南省体育场一带发现的商代祭祀遗存,表明商城北部并非纯粹的生产或生活区,同时也承载了重要的精神信仰与礼仪活动功能。祭祀区的存在,往往与政治权威的彰显和社会秩序的维系紧密相连,将其布局于重要的经济工业区附近或之内,可能反映了国家权力对核心经济活动的控制与庇佑,也说明了该区域在商城整体社会与礼仪体系中的重要性。郑州商城制陶、制骨、铸铜作坊内开始出现大量祭祀遗存,意味着郑州商城的手工业者开始拥有相应的祭祀权力。

综上所述,郑州商城北部的考古发现,系统性地揭示了该区域是人口稠密、长期发展的活跃区域,是支撑商城运转的核心手工业与经济中心。因此,将这一面积广阔、遗存丰富的区域纳入郑州商城,使商城不再局限于内城及已确认的郭城部分,其总体范围显著扩大。这些考古发现不仅改变了我们对商城空间范围的传统认知,也扩大了商城实际使用的总面积。河南省体育场祭祀场的发现,为我们系统理解郑州商城的祭祀功能打开了大门,并有力地证明,这座早商王都已经呈现出早期“大邑商”的社会形态。

(三)郑州商城王陵区西北方位说的新佐证

近年来,随着考古工作的深入开展,尤其是对商城西北部区域的持续勘探与发掘,结合安阳殷墟王陵区的规划逻辑,郑州商城王陵区位于都城西北部的可能性正日益凸显。

地理环境方面,根据考古发现,郑州商城的西部与东部都有湖泊,其中东部水域面积很大,与圃田泽紧密相连,西部也有湖泊及古金水河河道,南部经考古发掘为战国墓区。唯有西北部南傍古金水河,北倚岗杜丘陵,地势相对高亢,符合“依山傍水”的环境条件。殷墟西北岗王陵区正是选址于洹水北岸的高地之上,背倚太行余脉,面临洹河,体现了对高地、临水环境的选择。体育场祭祀场西北部“岗杜岭”,则与殷墟王陵区的环境选择模式高度契合,这并非偶然,很可能源于一脉相承的商代早期王室墓地选址理念。

“殷人尊东北方位”,北方位具有天然的神圣属性。从商文化发展的延续性看,殷墟作为商代晚期都城,其规划是长期发展的结果,许多制度应溯源于早、中期。殷墟将王陵区置于都城西北岗的格局,很可能继承了更早的都城规划传统。郑州商城作为早于殷墟的、规模宏大的王朝都城,其城市规划必然包含了对王室墓葬区域的整体安排。因此,从文化延续性与制度演进的逻辑分析,在郑州商城西北部寻找早期王陵区存在可能性。当然,这一推论的最终证实,有待于未来在商城西北部开展系统、深入的考古勘探与关键性发掘。

本文原刊于《中原文化研究》2026年第1期,注释从略,如需引用,请以原文为准!

END

编辑丨杨勐

审核丨张立东

最新文章

随机文章

基本 文件 流程 错误 SQL 调试
  1. 请求信息 : 2026-04-06 20:30:56 HTTP/2.0 GET : https://i.460.net.cn/a/499241.html
  2. 运行时间 : 0.120116s [ 吞吐率:8.33req/s ] 内存消耗:4,544.48kb 文件加载:140
  3. 缓存信息 : 0 reads,0 writes
  4. 会话信息 : SESSION_ID=a50bc5f54f033ca588fa8470fcaa77be
  1. /yingpanguazai/ssd/ssd1/www/i.460.net.cn/public/index.php ( 0.79 KB )
  2. /yingpanguazai/ssd/ssd1/www/i.460.net.cn/vendor/autoload.php ( 0.17 KB )
  3. /yingpanguazai/ssd/ssd1/www/i.460.net.cn/vendor/composer/autoload_real.php ( 2.49 KB )
  4. /yingpanguazai/ssd/ssd1/www/i.460.net.cn/vendor/composer/platform_check.php ( 0.90 KB )
  5. /yingpanguazai/ssd/ssd1/www/i.460.net.cn/vendor/composer/ClassLoader.php ( 14.03 KB )
  6. /yingpanguazai/ssd/ssd1/www/i.460.net.cn/vendor/composer/autoload_static.php ( 4.90 KB )
  7. /yingpanguazai/ssd/ssd1/www/i.460.net.cn/vendor/topthink/think-helper/src/helper.php ( 8.34 KB )
  8. /yingpanguazai/ssd/ssd1/www/i.460.net.cn/vendor/topthink/think-validate/src/helper.php ( 2.19 KB )
  9. /yingpanguazai/ssd/ssd1/www/i.460.net.cn/vendor/topthink/think-orm/src/helper.php ( 1.47 KB )
  10. /yingpanguazai/ssd/ssd1/www/i.460.net.cn/vendor/topthink/think-orm/stubs/load_stubs.php ( 0.16 KB )
  11. /yingpanguazai/ssd/ssd1/www/i.460.net.cn/vendor/topthink/framework/src/think/Exception.php ( 1.69 KB )
  12. /yingpanguazai/ssd/ssd1/www/i.460.net.cn/vendor/topthink/think-container/src/Facade.php ( 2.71 KB )
  13. /yingpanguazai/ssd/ssd1/www/i.460.net.cn/vendor/symfony/deprecation-contracts/function.php ( 0.99 KB )
  14. /yingpanguazai/ssd/ssd1/www/i.460.net.cn/vendor/symfony/polyfill-mbstring/bootstrap.php ( 8.26 KB )
  15. /yingpanguazai/ssd/ssd1/www/i.460.net.cn/vendor/symfony/polyfill-mbstring/bootstrap80.php ( 9.78 KB )
  16. /yingpanguazai/ssd/ssd1/www/i.460.net.cn/vendor/symfony/var-dumper/Resources/functions/dump.php ( 1.49 KB )
  17. /yingpanguazai/ssd/ssd1/www/i.460.net.cn/vendor/topthink/think-dumper/src/helper.php ( 0.18 KB )
  18. /yingpanguazai/ssd/ssd1/www/i.460.net.cn/vendor/symfony/var-dumper/VarDumper.php ( 4.30 KB )
  19. /yingpanguazai/ssd/ssd1/www/i.460.net.cn/vendor/topthink/framework/src/think/App.php ( 15.30 KB )
  20. /yingpanguazai/ssd/ssd1/www/i.460.net.cn/vendor/topthink/think-container/src/Container.php ( 15.76 KB )
  21. /yingpanguazai/ssd/ssd1/www/i.460.net.cn/vendor/psr/container/src/ContainerInterface.php ( 1.02 KB )
  22. /yingpanguazai/ssd/ssd1/www/i.460.net.cn/app/provider.php ( 0.19 KB )
  23. /yingpanguazai/ssd/ssd1/www/i.460.net.cn/vendor/topthink/framework/src/think/Http.php ( 6.04 KB )
  24. /yingpanguazai/ssd/ssd1/www/i.460.net.cn/vendor/topthink/think-helper/src/helper/Str.php ( 7.29 KB )
  25. /yingpanguazai/ssd/ssd1/www/i.460.net.cn/vendor/topthink/framework/src/think/Env.php ( 4.68 KB )
  26. /yingpanguazai/ssd/ssd1/www/i.460.net.cn/app/common.php ( 0.03 KB )
  27. /yingpanguazai/ssd/ssd1/www/i.460.net.cn/vendor/topthink/framework/src/helper.php ( 18.78 KB )
  28. /yingpanguazai/ssd/ssd1/www/i.460.net.cn/vendor/topthink/framework/src/think/Config.php ( 5.54 KB )
  29. /yingpanguazai/ssd/ssd1/www/i.460.net.cn/config/app.php ( 0.95 KB )
  30. /yingpanguazai/ssd/ssd1/www/i.460.net.cn/config/cache.php ( 0.78 KB )
  31. /yingpanguazai/ssd/ssd1/www/i.460.net.cn/config/console.php ( 0.23 KB )
  32. /yingpanguazai/ssd/ssd1/www/i.460.net.cn/config/cookie.php ( 0.56 KB )
  33. /yingpanguazai/ssd/ssd1/www/i.460.net.cn/config/database.php ( 2.47 KB )
  34. /yingpanguazai/ssd/ssd1/www/i.460.net.cn/vendor/topthink/framework/src/think/facade/Env.php ( 1.67 KB )
  35. /yingpanguazai/ssd/ssd1/www/i.460.net.cn/config/filesystem.php ( 0.61 KB )
  36. /yingpanguazai/ssd/ssd1/www/i.460.net.cn/config/lang.php ( 0.91 KB )
  37. /yingpanguazai/ssd/ssd1/www/i.460.net.cn/config/log.php ( 1.35 KB )
  38. /yingpanguazai/ssd/ssd1/www/i.460.net.cn/config/middleware.php ( 0.19 KB )
  39. /yingpanguazai/ssd/ssd1/www/i.460.net.cn/config/route.php ( 1.89 KB )
  40. /yingpanguazai/ssd/ssd1/www/i.460.net.cn/config/session.php ( 0.57 KB )
  41. /yingpanguazai/ssd/ssd1/www/i.460.net.cn/config/trace.php ( 0.34 KB )
  42. /yingpanguazai/ssd/ssd1/www/i.460.net.cn/config/view.php ( 0.82 KB )
  43. /yingpanguazai/ssd/ssd1/www/i.460.net.cn/app/event.php ( 0.25 KB )
  44. /yingpanguazai/ssd/ssd1/www/i.460.net.cn/vendor/topthink/framework/src/think/Event.php ( 7.67 KB )
  45. /yingpanguazai/ssd/ssd1/www/i.460.net.cn/app/service.php ( 0.13 KB )
  46. /yingpanguazai/ssd/ssd1/www/i.460.net.cn/app/AppService.php ( 0.26 KB )
  47. /yingpanguazai/ssd/ssd1/www/i.460.net.cn/vendor/topthink/framework/src/think/Service.php ( 1.64 KB )
  48. /yingpanguazai/ssd/ssd1/www/i.460.net.cn/vendor/topthink/framework/src/think/Lang.php ( 7.35 KB )
  49. /yingpanguazai/ssd/ssd1/www/i.460.net.cn/vendor/topthink/framework/src/lang/zh-cn.php ( 13.70 KB )
  50. /yingpanguazai/ssd/ssd1/www/i.460.net.cn/vendor/topthink/framework/src/think/initializer/Error.php ( 3.31 KB )
  51. /yingpanguazai/ssd/ssd1/www/i.460.net.cn/vendor/topthink/framework/src/think/initializer/RegisterService.php ( 1.33 KB )
  52. /yingpanguazai/ssd/ssd1/www/i.460.net.cn/vendor/services.php ( 0.14 KB )
  53. /yingpanguazai/ssd/ssd1/www/i.460.net.cn/vendor/topthink/framework/src/think/service/PaginatorService.php ( 1.52 KB )
  54. /yingpanguazai/ssd/ssd1/www/i.460.net.cn/vendor/topthink/framework/src/think/service/ValidateService.php ( 0.99 KB )
  55. /yingpanguazai/ssd/ssd1/www/i.460.net.cn/vendor/topthink/framework/src/think/service/ModelService.php ( 2.04 KB )
  56. /yingpanguazai/ssd/ssd1/www/i.460.net.cn/vendor/topthink/think-trace/src/Service.php ( 0.77 KB )
  57. /yingpanguazai/ssd/ssd1/www/i.460.net.cn/vendor/topthink/framework/src/think/Middleware.php ( 6.72 KB )
  58. /yingpanguazai/ssd/ssd1/www/i.460.net.cn/vendor/topthink/framework/src/think/initializer/BootService.php ( 0.77 KB )
  59. /yingpanguazai/ssd/ssd1/www/i.460.net.cn/vendor/topthink/think-orm/src/Paginator.php ( 11.86 KB )
  60. /yingpanguazai/ssd/ssd1/www/i.460.net.cn/vendor/topthink/think-validate/src/Validate.php ( 63.20 KB )
  61. /yingpanguazai/ssd/ssd1/www/i.460.net.cn/vendor/topthink/think-orm/src/Model.php ( 23.55 KB )
  62. /yingpanguazai/ssd/ssd1/www/i.460.net.cn/vendor/topthink/think-orm/src/model/concern/Attribute.php ( 21.05 KB )
  63. /yingpanguazai/ssd/ssd1/www/i.460.net.cn/vendor/topthink/think-orm/src/model/concern/AutoWriteData.php ( 4.21 KB )
  64. /yingpanguazai/ssd/ssd1/www/i.460.net.cn/vendor/topthink/think-orm/src/model/concern/Conversion.php ( 6.44 KB )
  65. /yingpanguazai/ssd/ssd1/www/i.460.net.cn/vendor/topthink/think-orm/src/model/concern/DbConnect.php ( 5.16 KB )
  66. /yingpanguazai/ssd/ssd1/www/i.460.net.cn/vendor/topthink/think-orm/src/model/concern/ModelEvent.php ( 2.33 KB )
  67. /yingpanguazai/ssd/ssd1/www/i.460.net.cn/vendor/topthink/think-orm/src/model/concern/RelationShip.php ( 28.29 KB )
  68. /yingpanguazai/ssd/ssd1/www/i.460.net.cn/vendor/topthink/think-helper/src/contract/Arrayable.php ( 0.09 KB )
  69. /yingpanguazai/ssd/ssd1/www/i.460.net.cn/vendor/topthink/think-helper/src/contract/Jsonable.php ( 0.13 KB )
  70. /yingpanguazai/ssd/ssd1/www/i.460.net.cn/vendor/topthink/think-orm/src/model/contract/Modelable.php ( 0.09 KB )
  71. /yingpanguazai/ssd/ssd1/www/i.460.net.cn/vendor/topthink/framework/src/think/Db.php ( 2.88 KB )
  72. /yingpanguazai/ssd/ssd1/www/i.460.net.cn/vendor/topthink/think-orm/src/DbManager.php ( 8.52 KB )
  73. /yingpanguazai/ssd/ssd1/www/i.460.net.cn/vendor/topthink/framework/src/think/Log.php ( 6.28 KB )
  74. /yingpanguazai/ssd/ssd1/www/i.460.net.cn/vendor/topthink/framework/src/think/Manager.php ( 3.92 KB )
  75. /yingpanguazai/ssd/ssd1/www/i.460.net.cn/vendor/psr/log/src/LoggerTrait.php ( 2.69 KB )
  76. /yingpanguazai/ssd/ssd1/www/i.460.net.cn/vendor/psr/log/src/LoggerInterface.php ( 2.71 KB )
  77. /yingpanguazai/ssd/ssd1/www/i.460.net.cn/vendor/topthink/framework/src/think/Cache.php ( 4.92 KB )
  78. /yingpanguazai/ssd/ssd1/www/i.460.net.cn/vendor/psr/simple-cache/src/CacheInterface.php ( 4.71 KB )
  79. /yingpanguazai/ssd/ssd1/www/i.460.net.cn/vendor/topthink/think-helper/src/helper/Arr.php ( 16.63 KB )
  80. /yingpanguazai/ssd/ssd1/www/i.460.net.cn/vendor/topthink/framework/src/think/cache/driver/File.php ( 7.84 KB )
  81. /yingpanguazai/ssd/ssd1/www/i.460.net.cn/vendor/topthink/framework/src/think/cache/Driver.php ( 9.03 KB )
  82. /yingpanguazai/ssd/ssd1/www/i.460.net.cn/vendor/topthink/framework/src/think/contract/CacheHandlerInterface.php ( 1.99 KB )
  83. /yingpanguazai/ssd/ssd1/www/i.460.net.cn/app/Request.php ( 0.09 KB )
  84. /yingpanguazai/ssd/ssd1/www/i.460.net.cn/vendor/topthink/framework/src/think/Request.php ( 55.78 KB )
  85. /yingpanguazai/ssd/ssd1/www/i.460.net.cn/app/middleware.php ( 0.25 KB )
  86. /yingpanguazai/ssd/ssd1/www/i.460.net.cn/vendor/topthink/framework/src/think/Pipeline.php ( 2.61 KB )
  87. /yingpanguazai/ssd/ssd1/www/i.460.net.cn/vendor/topthink/think-trace/src/TraceDebug.php ( 3.40 KB )
  88. /yingpanguazai/ssd/ssd1/www/i.460.net.cn/vendor/topthink/framework/src/think/middleware/SessionInit.php ( 1.94 KB )
  89. /yingpanguazai/ssd/ssd1/www/i.460.net.cn/vendor/topthink/framework/src/think/Session.php ( 1.80 KB )
  90. /yingpanguazai/ssd/ssd1/www/i.460.net.cn/vendor/topthink/framework/src/think/session/driver/File.php ( 6.27 KB )
  91. /yingpanguazai/ssd/ssd1/www/i.460.net.cn/vendor/topthink/framework/src/think/contract/SessionHandlerInterface.php ( 0.87 KB )
  92. /yingpanguazai/ssd/ssd1/www/i.460.net.cn/vendor/topthink/framework/src/think/session/Store.php ( 7.12 KB )
  93. /yingpanguazai/ssd/ssd1/www/i.460.net.cn/vendor/topthink/framework/src/think/Route.php ( 23.73 KB )
  94. /yingpanguazai/ssd/ssd1/www/i.460.net.cn/vendor/topthink/framework/src/think/route/RuleName.php ( 5.75 KB )
  95. /yingpanguazai/ssd/ssd1/www/i.460.net.cn/vendor/topthink/framework/src/think/route/Domain.php ( 2.53 KB )
  96. /yingpanguazai/ssd/ssd1/www/i.460.net.cn/vendor/topthink/framework/src/think/route/RuleGroup.php ( 22.43 KB )
  97. /yingpanguazai/ssd/ssd1/www/i.460.net.cn/vendor/topthink/framework/src/think/route/Rule.php ( 26.95 KB )
  98. /yingpanguazai/ssd/ssd1/www/i.460.net.cn/vendor/topthink/framework/src/think/route/RuleItem.php ( 9.78 KB )
  99. /yingpanguazai/ssd/ssd1/www/i.460.net.cn/route/app.php ( 1.72 KB )
  100. /yingpanguazai/ssd/ssd1/www/i.460.net.cn/vendor/topthink/framework/src/think/facade/Route.php ( 4.70 KB )
  101. /yingpanguazai/ssd/ssd1/www/i.460.net.cn/vendor/topthink/framework/src/think/route/dispatch/Controller.php ( 4.74 KB )
  102. /yingpanguazai/ssd/ssd1/www/i.460.net.cn/vendor/topthink/framework/src/think/route/Dispatch.php ( 10.44 KB )
  103. /yingpanguazai/ssd/ssd1/www/i.460.net.cn/app/controller/Index.php ( 4.81 KB )
  104. /yingpanguazai/ssd/ssd1/www/i.460.net.cn/app/BaseController.php ( 2.05 KB )
  105. /yingpanguazai/ssd/ssd1/www/i.460.net.cn/vendor/topthink/think-orm/src/facade/Db.php ( 0.93 KB )
  106. /yingpanguazai/ssd/ssd1/www/i.460.net.cn/vendor/topthink/think-orm/src/db/connector/Mysql.php ( 5.44 KB )
  107. /yingpanguazai/ssd/ssd1/www/i.460.net.cn/vendor/topthink/think-orm/src/db/PDOConnection.php ( 52.47 KB )
  108. /yingpanguazai/ssd/ssd1/www/i.460.net.cn/vendor/topthink/think-orm/src/db/Connection.php ( 8.39 KB )
  109. /yingpanguazai/ssd/ssd1/www/i.460.net.cn/vendor/topthink/think-orm/src/db/ConnectionInterface.php ( 4.57 KB )
  110. /yingpanguazai/ssd/ssd1/www/i.460.net.cn/vendor/topthink/think-orm/src/db/builder/Mysql.php ( 16.58 KB )
  111. /yingpanguazai/ssd/ssd1/www/i.460.net.cn/vendor/topthink/think-orm/src/db/Builder.php ( 24.06 KB )
  112. /yingpanguazai/ssd/ssd1/www/i.460.net.cn/vendor/topthink/think-orm/src/db/BaseBuilder.php ( 27.50 KB )
  113. /yingpanguazai/ssd/ssd1/www/i.460.net.cn/vendor/topthink/think-orm/src/db/Query.php ( 15.71 KB )
  114. /yingpanguazai/ssd/ssd1/www/i.460.net.cn/vendor/topthink/think-orm/src/db/BaseQuery.php ( 45.13 KB )
  115. /yingpanguazai/ssd/ssd1/www/i.460.net.cn/vendor/topthink/think-orm/src/db/concern/TimeFieldQuery.php ( 7.43 KB )
  116. /yingpanguazai/ssd/ssd1/www/i.460.net.cn/vendor/topthink/think-orm/src/db/concern/AggregateQuery.php ( 3.26 KB )
  117. /yingpanguazai/ssd/ssd1/www/i.460.net.cn/vendor/topthink/think-orm/src/db/concern/ModelRelationQuery.php ( 20.07 KB )
  118. /yingpanguazai/ssd/ssd1/www/i.460.net.cn/vendor/topthink/think-orm/src/db/concern/ParamsBind.php ( 3.66 KB )
  119. /yingpanguazai/ssd/ssd1/www/i.460.net.cn/vendor/topthink/think-orm/src/db/concern/ResultOperation.php ( 7.01 KB )
  120. /yingpanguazai/ssd/ssd1/www/i.460.net.cn/vendor/topthink/think-orm/src/db/concern/WhereQuery.php ( 19.37 KB )
  121. /yingpanguazai/ssd/ssd1/www/i.460.net.cn/vendor/topthink/think-orm/src/db/concern/JoinAndViewQuery.php ( 7.11 KB )
  122. /yingpanguazai/ssd/ssd1/www/i.460.net.cn/vendor/topthink/think-orm/src/db/concern/TableFieldInfo.php ( 2.63 KB )
  123. /yingpanguazai/ssd/ssd1/www/i.460.net.cn/vendor/topthink/think-orm/src/db/concern/Transaction.php ( 2.77 KB )
  124. /yingpanguazai/ssd/ssd1/www/i.460.net.cn/vendor/topthink/framework/src/think/log/driver/File.php ( 5.96 KB )
  125. /yingpanguazai/ssd/ssd1/www/i.460.net.cn/vendor/topthink/framework/src/think/contract/LogHandlerInterface.php ( 0.86 KB )
  126. /yingpanguazai/ssd/ssd1/www/i.460.net.cn/vendor/topthink/framework/src/think/log/Channel.php ( 3.89 KB )
  127. /yingpanguazai/ssd/ssd1/www/i.460.net.cn/vendor/topthink/framework/src/think/event/LogRecord.php ( 1.02 KB )
  128. /yingpanguazai/ssd/ssd1/www/i.460.net.cn/vendor/topthink/think-helper/src/Collection.php ( 16.47 KB )
  129. /yingpanguazai/ssd/ssd1/www/i.460.net.cn/vendor/topthink/framework/src/think/facade/View.php ( 1.70 KB )
  130. /yingpanguazai/ssd/ssd1/www/i.460.net.cn/vendor/topthink/framework/src/think/View.php ( 4.39 KB )
  131. /yingpanguazai/ssd/ssd1/www/i.460.net.cn/vendor/topthink/framework/src/think/Response.php ( 8.81 KB )
  132. /yingpanguazai/ssd/ssd1/www/i.460.net.cn/vendor/topthink/framework/src/think/response/View.php ( 3.29 KB )
  133. /yingpanguazai/ssd/ssd1/www/i.460.net.cn/vendor/topthink/framework/src/think/Cookie.php ( 6.06 KB )
  134. /yingpanguazai/ssd/ssd1/www/i.460.net.cn/vendor/topthink/think-view/src/Think.php ( 8.38 KB )
  135. /yingpanguazai/ssd/ssd1/www/i.460.net.cn/vendor/topthink/framework/src/think/contract/TemplateHandlerInterface.php ( 1.60 KB )
  136. /yingpanguazai/ssd/ssd1/www/i.460.net.cn/vendor/topthink/think-template/src/Template.php ( 46.61 KB )
  137. /yingpanguazai/ssd/ssd1/www/i.460.net.cn/vendor/topthink/think-template/src/template/driver/File.php ( 2.41 KB )
  138. /yingpanguazai/ssd/ssd1/www/i.460.net.cn/vendor/topthink/think-template/src/template/contract/DriverInterface.php ( 0.86 KB )
  139. /yingpanguazai/ssd/ssd1/www/i.460.net.cn/runtime/temp/ea612fc1da910b74827694dd9af81119.php ( 11.98 KB )
  140. /yingpanguazai/ssd/ssd1/www/i.460.net.cn/vendor/topthink/think-trace/src/Html.php ( 4.42 KB )
  1. CONNECT:[ UseTime:0.000415s ] mysql:host=127.0.0.1;port=3306;dbname=i460;charset=utf8mb4
  2. SHOW FULL COLUMNS FROM `fenlei` [ RunTime:0.000665s ]
  3. SELECT * FROM `fenlei` WHERE `fid` = 0 [ RunTime:0.000294s ]
  4. SELECT * FROM `fenlei` WHERE `fid` = 63 [ RunTime:0.000291s ]
  5. SHOW FULL COLUMNS FROM `set` [ RunTime:0.000689s ]
  6. SELECT * FROM `set` [ RunTime:0.000254s ]
  7. SHOW FULL COLUMNS FROM `article` [ RunTime:0.000586s ]
  8. SELECT * FROM `article` WHERE `id` = 499241 LIMIT 1 [ RunTime:0.004613s ]
  9. UPDATE `article` SET `lasttime` = 1775478656 WHERE `id` = 499241 [ RunTime:0.016571s ]
  10. SELECT * FROM `fenlei` WHERE `id` = 64 LIMIT 1 [ RunTime:0.008781s ]
  11. SELECT * FROM `article` WHERE `id` < 499241 ORDER BY `id` DESC LIMIT 1 [ RunTime:0.002447s ]
  12. SELECT * FROM `article` WHERE `id` > 499241 ORDER BY `id` ASC LIMIT 1 [ RunTime:0.002475s ]
  13. SELECT * FROM `article` WHERE `id` < 499241 ORDER BY `id` DESC LIMIT 10 [ RunTime:0.001137s ]
  14. SELECT * FROM `article` WHERE `id` < 499241 ORDER BY `id` DESC LIMIT 10,10 [ RunTime:0.000651s ]
  15. SELECT * FROM `article` WHERE `id` < 499241 ORDER BY `id` DESC LIMIT 20,10 [ RunTime:0.012029s ]
0.121787s