当前位置:首页>郑州>【设计分析】郑州某高档办公楼VAV空调系统分析报告!

【设计分析】郑州某高档办公楼VAV空调系统分析报告!

  • 2026-05-08 11:59:59
【设计分析】郑州某高档办公楼VAV空调系统分析报告!
本项目坐落于中国郑州市郑东新区,毗邻河南省政府,地处中央政务区核心区域,交通便捷通畅,周边政府单位集聚,高端商务配套设施完善。项目致力于打造新中原文化的宏大会客厅,总建筑面积近 30 万平方米,涵盖文化商业综合体、高端写字楼及高端配套商业等多元业态。
其中,项目 M 座办公楼为自持型物业,定位为生态环保概念高端写字楼,建筑面积约 39,000 平方米。该建筑地上高度达 99.8 米,共 23 层,标准层层高 4.1 米。
本报告针对 M 座自持租赁型甲级写字楼采用 VAV 空调系统的可行性进行初步建设性分析,并提出相关建议,供业主方在项目前期决策参考。

1.0 写字楼 VAV 空调系统简介

VAV 变风量空调系统是全空气空调系统的重要形式,由单风道定风量系统演变而来。该系统由变频中央空调机组、变风量末端装置(VAV BOX)、控制元件及送回风管道等设备构成。
楼层空调机房内的集中空调机组,将处理后的空气以固定送风温度送入空调区域内的变风量末端装置,末端装置会根据空调区的负荷变化,通过调节送入房间的风量,实现室内温湿度的精准控制。
近年来,变风量空调系统在国内高端办公建筑中得到广泛推广与普及,其核心技术特点如下:

1.1 VAV 空调系统优点

  • 可实现局部区域(房间)的灵活独立控制;
  • 系统控制精度高,室温波动幅度小,除湿能力强,空调区室内热舒适性佳;
  • 集中处理循环空气,过滤等级高,室内空气品质优良;
  • 系统减少水管进入空调区域,避免空调区产生冷凝水及盘管湿工况运行,从根源上杜绝滴漏污染、细菌及霉菌滋生问题;
  • 部分负荷运行时,空调机组通过变频调节降低能耗,节能效果显著;
  • 具备条件时,可通过变新风比实现低温新风自然冷却,进一步提升节能效益;
  • 智能化程度高,可与建筑楼宇自控系统高效联动;
  • 空调区(办公区)的维修、保养工作量较少;
  • 灵活性强:二次装修过程中,风口位置可通过软管连接灵活调整;
  • 境外欧美租户对该系统认知度较高,可有效提升建筑物整体档次。

1.2 VAV 空调系统缺点

  • 因需大量配备变风量末端及控制设备,系统初投资相对较高;
  • 集中空调机组需在各楼层占用一定机房面积,可能降低建筑物使用率;
  • 全空气系统风管尺寸较大,会占用较多吊顶空间;
  • 系统的设计、施工及运行管理流程较为复杂;
  • 若空调机组未进行内外分区设置,冬季外区变风量末端装置需进行空气再热,易出现冷热抵消的能源浪费问题;
  • 风量调节过程中,区域内新风分配可能存在不均匀现象;
  • 末端装置内置的风机与调节风阀可能产生一定噪音。
变风量空调系统适用于对空气品质及区域温度控制要求较高的高等级办公、商用场所。

2.0 VAV 变风量系统的特性分析

2.1 舒适性与空气品质

现代办公建筑中,人员持续工作时间较长,室内热舒适性与空气品质直接影响工作人员的工作效率与身心健康。优质的室内环境是使用者关注的核心,也是高端办公楼的必备条件,而全空气变风量空调系统在这方面具有显著优势。

2.2 建筑影响及空间占用

变风量空调系统作为全空气系统,存在机房占用建筑面积、大尺寸风道影响层高的固有问题。因此,建筑设计阶段需充分考虑这些空间占用因素,合理规划楼层空调机房布局及楼层层高设计,在保障建筑设计合理性的基础上,满足空调系统的空间需求。
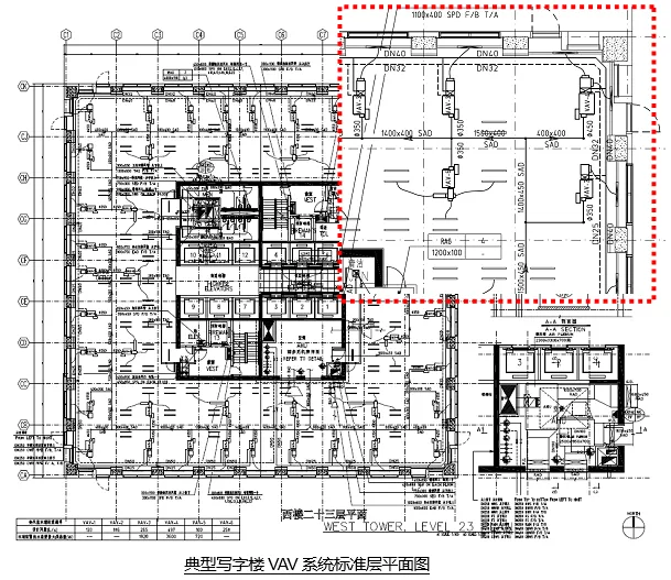
经初步估算,楼层 VAV 系统空调机房占用面积约为 40 平方米(含空调新、排风管井及水管井等相关设施);同时,VAV 系统每层吊顶内需占用 550mm 的建筑高度。

2.3 施工安装及运行维护

鉴于变风量空调系统在国内发展时间相对较短,相关设计、施工及运行管理经验尚不够成熟,导致施工管理难度较大、运行调试要求较高,且对后续物业管理工作提出了更高标准。

2.4 初投资费用

变风量系统初投资费用较高,经估算,VAV 空调系统初投资约为 650-750 元 / 平方米。

3.0 VAV 变风量系统的分类简介

3.1 VAV 空调末端形式

常用的 VAV 空调末端形式主要有单风道型、串联风机动力型(串联型 FPB)和并联风机动力型(并联型 FPB)。
常用变风量末端的特点及使用范围如下表所示:
特性
单风道型 VAV
并联型 FPB
串联型 FPB
风机
无风机设备
仅在供热和一次风小风量供冷时运行
供冷、供热期间连续运行
出口送风温度
一次风供冷、供热时送风温度不变化
大风量供冷时特性同单风道 VAV 设备;供热和小风量供冷时风机运行,一、二次风混合,送风温度变化;供热时送风温度呈阶梯或连续变化
供冷时风机运行,一、二次风混合,送风温度变化;供热时送风温度呈阶梯或连续变化
末端设备尺寸
风机耗电
噪声
小,仅风阀噪声
中,小风量风机间歇噪声 + 风阀噪声
大风量风机连续噪声 + 风阀噪声
气流组织效果
送风量变化,气流组织较差
大风量供冷时送风量变化,气流组织较差;小风量供冷和供热工况下气流组织较好
风量恒定,气流组织较好
适用范围
可用于内区或外区,主要用于供冷工况
可用于外区供冷或供热工况
可用于内区或外区,供冷或供热工况;较适合低温送风系统
结合本项目所在的北方地区气候特点,建议采用内区单风道型 VAV + 外区再热并联型 FPB 的组合配置方式。

3.2 VAV 空调系统控制

常用的 VAV 空调系统控制方式主要有定静压法、变静压法和总风量法。
(变风量末端控制)

定静压法

定静压法是变风量系统中最为经典的风量控制方法,其核心是通过控制送风管内最低静压处的静压值,保障系统及末端 VAV 的变风量稳定运行。具体而言,在送风系统管网的适宜位置(通常位于离风机 2/3 处)设置静压传感器,在维持该点静压恒定的前提下,通过调节风机受电频率,实现空调系统送风量的调整。
该方法控制系统结构相对简单,系统调试难度较低;但存在系统运行时风机能耗较高、末端阀位多处于偏小状态、易产生噪声、系统可能出现失调等问题,其核心难点在于如何确定稳定且合适的最低静压点。

变静压法

变静压控制的核心原则是保持每个 VAV 末端的阀门开度在 85%-100% 之间(即尽可能全开),并最大限度减小风管内静压,在此基础上通过调节风机受电频率改变空调系统送风量。变静压法需通过 BA 系统与每个 VAV 末端控制器联网,实时读取风量需求值和阀位开度,运行过程中根据末端风阀开度动态修正风机转速。
相较于定静压法,变静压法节能效果更优,但要求 VAV 末端能够输出阀位信号,同时在工程调试阶段需获取末端全开状态下 AHU 风量与转速对照表,导致控制算法复杂,调试工作量及难度较大,实现难度较高。尤其需要注意的是,目前多数控制公司的产品未提供变静压控制算法,需控制人员现场编程、调试,因此该方法必须由实力雄厚且具备相关工程经验的专业技术人员完成。

总风量法

总风量法是结合我国当前实际情况形成的一种简单易行的新型控制方法。其工作原理为:VAV BOX 控制器根据室内负荷变化,调整末端出风量以满足负荷需求,并将风量信号传递至变频器控制器;变频器控制器搜集管辖范围内所有末端的风量数据,经解偶分析计算后累加,进而控制变频器调整空调机电机转速,使送风量与总末端风量之和保持一致。
总风量控制在风机节能效果上介于变静压控制和定静压控制之间,且更接近变静压控制。在控制性能方面,总风量控制具有响应快速、运行稳定的特点,避免了压力控制模式下系统压力频繁出现高频小幅振荡的问题。但该方法也存在一定缺陷,即会增加末端之间的耦合程度。

4.0 综合建议

4.1 变风量空调系统凭借舒适、节能等突出优势,在北美、日本等国家的高级办公大楼中已得到广泛应用,积累了丰富的设计与运行实践经验。随着国内写字楼智能化水平的不断提升,对空调系统的舒适性、安全性、节能性及智能化功能提出了更高要求,因此变风量空调系统更适用于定位高端的国际甲级写字楼。
4.2 结合国内现阶段的实际发展情况,VAV 变风量空调系统对整体设计、施工及运行管理的要求更为严苛,需投入更多的人力、物力及财力资源以保障系统稳定高效运行。
4.3 VAV 变风量空调系统对建筑层高及平面布置影响较大。根据工程实践经验,VAV 系统需在各标准层(面积 1700 平方米)设置不小于 40 平方米的空调机房;此外,该系统对层高要求较高,每层需占用 550mm 的吊顶空间。结合本建筑 4.1 米的层高条件,参考过往项目经验,吊顶下净空可控制在 2.7 米左右。
4.4 本项目办公楼单层面积约为 1700 平方米,房间进深达 10 米,且不同朝向均具有较大的外围护面积,导致办公区存在室内冷、热负荷分布不均(如内区与外区、不同朝向、人员密度差异、设备发热情况不同等)、使用时间与使用要求各异、功能变化较为频繁等特点。因此,建议空调系统采用内外分区设计,VAV 系统可考虑配置全年供冷的空调机组,内区采用单风道型 VAV 末端,外区采用并联风机动力型 VAV 末端并配置再热器。
4.5 考虑到 VAV 系统可能存在新风分配不均匀的问题,建议配套设置独立新风系统,进一步提升写字楼整体空气品质。

点点赞和在看,就能经常看到我啦

最新文章

随机文章

基本 文件 流程 错误 SQL 调试
  1. 请求信息 : 2026-05-21 10:30:53 HTTP/2.0 GET : https://i.460.net.cn/a/470449.html
  2. 运行时间 : 0.080176s [ 吞吐率:12.47req/s ] 内存消耗:4,423.13kb 文件加载:140
  3. 缓存信息 : 0 reads,0 writes
  4. 会话信息 : SESSION_ID=97d8b5623fa9d9e191777e42eb6fc7f4
  1. /yingpanguazai/ssd/ssd1/www/i.460.net.cn/public/index.php ( 0.79 KB )
  2. /yingpanguazai/ssd/ssd1/www/i.460.net.cn/vendor/autoload.php ( 0.17 KB )
  3. /yingpanguazai/ssd/ssd1/www/i.460.net.cn/vendor/composer/autoload_real.php ( 2.49 KB )
  4. /yingpanguazai/ssd/ssd1/www/i.460.net.cn/vendor/composer/platform_check.php ( 0.90 KB )
  5. /yingpanguazai/ssd/ssd1/www/i.460.net.cn/vendor/composer/ClassLoader.php ( 14.03 KB )
  6. /yingpanguazai/ssd/ssd1/www/i.460.net.cn/vendor/composer/autoload_static.php ( 4.90 KB )
  7. /yingpanguazai/ssd/ssd1/www/i.460.net.cn/vendor/topthink/think-helper/src/helper.php ( 8.34 KB )
  8. /yingpanguazai/ssd/ssd1/www/i.460.net.cn/vendor/topthink/think-validate/src/helper.php ( 2.19 KB )
  9. /yingpanguazai/ssd/ssd1/www/i.460.net.cn/vendor/topthink/think-orm/src/helper.php ( 1.47 KB )
  10. /yingpanguazai/ssd/ssd1/www/i.460.net.cn/vendor/topthink/think-orm/stubs/load_stubs.php ( 0.16 KB )
  11. /yingpanguazai/ssd/ssd1/www/i.460.net.cn/vendor/topthink/framework/src/think/Exception.php ( 1.69 KB )
  12. /yingpanguazai/ssd/ssd1/www/i.460.net.cn/vendor/topthink/think-container/src/Facade.php ( 2.71 KB )
  13. /yingpanguazai/ssd/ssd1/www/i.460.net.cn/vendor/symfony/deprecation-contracts/function.php ( 0.99 KB )
  14. /yingpanguazai/ssd/ssd1/www/i.460.net.cn/vendor/symfony/polyfill-mbstring/bootstrap.php ( 8.26 KB )
  15. /yingpanguazai/ssd/ssd1/www/i.460.net.cn/vendor/symfony/polyfill-mbstring/bootstrap80.php ( 9.78 KB )
  16. /yingpanguazai/ssd/ssd1/www/i.460.net.cn/vendor/symfony/var-dumper/Resources/functions/dump.php ( 1.49 KB )
  17. /yingpanguazai/ssd/ssd1/www/i.460.net.cn/vendor/topthink/think-dumper/src/helper.php ( 0.18 KB )
  18. /yingpanguazai/ssd/ssd1/www/i.460.net.cn/vendor/symfony/var-dumper/VarDumper.php ( 4.30 KB )
  19. /yingpanguazai/ssd/ssd1/www/i.460.net.cn/vendor/topthink/framework/src/think/App.php ( 15.30 KB )
  20. /yingpanguazai/ssd/ssd1/www/i.460.net.cn/vendor/topthink/think-container/src/Container.php ( 15.76 KB )
  21. /yingpanguazai/ssd/ssd1/www/i.460.net.cn/vendor/psr/container/src/ContainerInterface.php ( 1.02 KB )
  22. /yingpanguazai/ssd/ssd1/www/i.460.net.cn/app/provider.php ( 0.19 KB )
  23. /yingpanguazai/ssd/ssd1/www/i.460.net.cn/vendor/topthink/framework/src/think/Http.php ( 6.04 KB )
  24. /yingpanguazai/ssd/ssd1/www/i.460.net.cn/vendor/topthink/think-helper/src/helper/Str.php ( 7.29 KB )
  25. /yingpanguazai/ssd/ssd1/www/i.460.net.cn/vendor/topthink/framework/src/think/Env.php ( 4.68 KB )
  26. /yingpanguazai/ssd/ssd1/www/i.460.net.cn/app/common.php ( 0.03 KB )
  27. /yingpanguazai/ssd/ssd1/www/i.460.net.cn/vendor/topthink/framework/src/helper.php ( 18.78 KB )
  28. /yingpanguazai/ssd/ssd1/www/i.460.net.cn/vendor/topthink/framework/src/think/Config.php ( 5.54 KB )
  29. /yingpanguazai/ssd/ssd1/www/i.460.net.cn/config/app.php ( 0.95 KB )
  30. /yingpanguazai/ssd/ssd1/www/i.460.net.cn/config/cache.php ( 0.78 KB )
  31. /yingpanguazai/ssd/ssd1/www/i.460.net.cn/config/console.php ( 0.23 KB )
  32. /yingpanguazai/ssd/ssd1/www/i.460.net.cn/config/cookie.php ( 0.56 KB )
  33. /yingpanguazai/ssd/ssd1/www/i.460.net.cn/config/database.php ( 2.47 KB )
  34. /yingpanguazai/ssd/ssd1/www/i.460.net.cn/vendor/topthink/framework/src/think/facade/Env.php ( 1.67 KB )
  35. /yingpanguazai/ssd/ssd1/www/i.460.net.cn/config/filesystem.php ( 0.61 KB )
  36. /yingpanguazai/ssd/ssd1/www/i.460.net.cn/config/lang.php ( 0.91 KB )
  37. /yingpanguazai/ssd/ssd1/www/i.460.net.cn/config/log.php ( 1.35 KB )
  38. /yingpanguazai/ssd/ssd1/www/i.460.net.cn/config/middleware.php ( 0.19 KB )
  39. /yingpanguazai/ssd/ssd1/www/i.460.net.cn/config/route.php ( 1.89 KB )
  40. /yingpanguazai/ssd/ssd1/www/i.460.net.cn/config/session.php ( 0.57 KB )
  41. /yingpanguazai/ssd/ssd1/www/i.460.net.cn/config/trace.php ( 0.34 KB )
  42. /yingpanguazai/ssd/ssd1/www/i.460.net.cn/config/view.php ( 0.82 KB )
  43. /yingpanguazai/ssd/ssd1/www/i.460.net.cn/app/event.php ( 0.25 KB )
  44. /yingpanguazai/ssd/ssd1/www/i.460.net.cn/vendor/topthink/framework/src/think/Event.php ( 7.67 KB )
  45. /yingpanguazai/ssd/ssd1/www/i.460.net.cn/app/service.php ( 0.13 KB )
  46. /yingpanguazai/ssd/ssd1/www/i.460.net.cn/app/AppService.php ( 0.26 KB )
  47. /yingpanguazai/ssd/ssd1/www/i.460.net.cn/vendor/topthink/framework/src/think/Service.php ( 1.64 KB )
  48. /yingpanguazai/ssd/ssd1/www/i.460.net.cn/vendor/topthink/framework/src/think/Lang.php ( 7.35 KB )
  49. /yingpanguazai/ssd/ssd1/www/i.460.net.cn/vendor/topthink/framework/src/lang/zh-cn.php ( 13.70 KB )
  50. /yingpanguazai/ssd/ssd1/www/i.460.net.cn/vendor/topthink/framework/src/think/initializer/Error.php ( 3.31 KB )
  51. /yingpanguazai/ssd/ssd1/www/i.460.net.cn/vendor/topthink/framework/src/think/initializer/RegisterService.php ( 1.33 KB )
  52. /yingpanguazai/ssd/ssd1/www/i.460.net.cn/vendor/services.php ( 0.14 KB )
  53. /yingpanguazai/ssd/ssd1/www/i.460.net.cn/vendor/topthink/framework/src/think/service/PaginatorService.php ( 1.52 KB )
  54. /yingpanguazai/ssd/ssd1/www/i.460.net.cn/vendor/topthink/framework/src/think/service/ValidateService.php ( 0.99 KB )
  55. /yingpanguazai/ssd/ssd1/www/i.460.net.cn/vendor/topthink/framework/src/think/service/ModelService.php ( 2.04 KB )
  56. /yingpanguazai/ssd/ssd1/www/i.460.net.cn/vendor/topthink/think-trace/src/Service.php ( 0.77 KB )
  57. /yingpanguazai/ssd/ssd1/www/i.460.net.cn/vendor/topthink/framework/src/think/Middleware.php ( 6.72 KB )
  58. /yingpanguazai/ssd/ssd1/www/i.460.net.cn/vendor/topthink/framework/src/think/initializer/BootService.php ( 0.77 KB )
  59. /yingpanguazai/ssd/ssd1/www/i.460.net.cn/vendor/topthink/think-orm/src/Paginator.php ( 11.86 KB )
  60. /yingpanguazai/ssd/ssd1/www/i.460.net.cn/vendor/topthink/think-validate/src/Validate.php ( 63.20 KB )
  61. /yingpanguazai/ssd/ssd1/www/i.460.net.cn/vendor/topthink/think-orm/src/Model.php ( 23.55 KB )
  62. /yingpanguazai/ssd/ssd1/www/i.460.net.cn/vendor/topthink/think-orm/src/model/concern/Attribute.php ( 21.05 KB )
  63. /yingpanguazai/ssd/ssd1/www/i.460.net.cn/vendor/topthink/think-orm/src/model/concern/AutoWriteData.php ( 4.21 KB )
  64. /yingpanguazai/ssd/ssd1/www/i.460.net.cn/vendor/topthink/think-orm/src/model/concern/Conversion.php ( 6.44 KB )
  65. /yingpanguazai/ssd/ssd1/www/i.460.net.cn/vendor/topthink/think-orm/src/model/concern/DbConnect.php ( 5.16 KB )
  66. /yingpanguazai/ssd/ssd1/www/i.460.net.cn/vendor/topthink/think-orm/src/model/concern/ModelEvent.php ( 2.33 KB )
  67. /yingpanguazai/ssd/ssd1/www/i.460.net.cn/vendor/topthink/think-orm/src/model/concern/RelationShip.php ( 28.29 KB )
  68. /yingpanguazai/ssd/ssd1/www/i.460.net.cn/vendor/topthink/think-helper/src/contract/Arrayable.php ( 0.09 KB )
  69. /yingpanguazai/ssd/ssd1/www/i.460.net.cn/vendor/topthink/think-helper/src/contract/Jsonable.php ( 0.13 KB )
  70. /yingpanguazai/ssd/ssd1/www/i.460.net.cn/vendor/topthink/think-orm/src/model/contract/Modelable.php ( 0.09 KB )
  71. /yingpanguazai/ssd/ssd1/www/i.460.net.cn/vendor/topthink/framework/src/think/Db.php ( 2.88 KB )
  72. /yingpanguazai/ssd/ssd1/www/i.460.net.cn/vendor/topthink/think-orm/src/DbManager.php ( 8.52 KB )
  73. /yingpanguazai/ssd/ssd1/www/i.460.net.cn/vendor/topthink/framework/src/think/Log.php ( 6.28 KB )
  74. /yingpanguazai/ssd/ssd1/www/i.460.net.cn/vendor/topthink/framework/src/think/Manager.php ( 3.92 KB )
  75. /yingpanguazai/ssd/ssd1/www/i.460.net.cn/vendor/psr/log/src/LoggerTrait.php ( 2.69 KB )
  76. /yingpanguazai/ssd/ssd1/www/i.460.net.cn/vendor/psr/log/src/LoggerInterface.php ( 2.71 KB )
  77. /yingpanguazai/ssd/ssd1/www/i.460.net.cn/vendor/topthink/framework/src/think/Cache.php ( 4.92 KB )
  78. /yingpanguazai/ssd/ssd1/www/i.460.net.cn/vendor/psr/simple-cache/src/CacheInterface.php ( 4.71 KB )
  79. /yingpanguazai/ssd/ssd1/www/i.460.net.cn/vendor/topthink/think-helper/src/helper/Arr.php ( 16.63 KB )
  80. /yingpanguazai/ssd/ssd1/www/i.460.net.cn/vendor/topthink/framework/src/think/cache/driver/File.php ( 7.84 KB )
  81. /yingpanguazai/ssd/ssd1/www/i.460.net.cn/vendor/topthink/framework/src/think/cache/Driver.php ( 9.03 KB )
  82. /yingpanguazai/ssd/ssd1/www/i.460.net.cn/vendor/topthink/framework/src/think/contract/CacheHandlerInterface.php ( 1.99 KB )
  83. /yingpanguazai/ssd/ssd1/www/i.460.net.cn/app/Request.php ( 0.09 KB )
  84. /yingpanguazai/ssd/ssd1/www/i.460.net.cn/vendor/topthink/framework/src/think/Request.php ( 55.78 KB )
  85. /yingpanguazai/ssd/ssd1/www/i.460.net.cn/app/middleware.php ( 0.25 KB )
  86. /yingpanguazai/ssd/ssd1/www/i.460.net.cn/vendor/topthink/framework/src/think/Pipeline.php ( 2.61 KB )
  87. /yingpanguazai/ssd/ssd1/www/i.460.net.cn/vendor/topthink/think-trace/src/TraceDebug.php ( 3.40 KB )
  88. /yingpanguazai/ssd/ssd1/www/i.460.net.cn/vendor/topthink/framework/src/think/middleware/SessionInit.php ( 1.94 KB )
  89. /yingpanguazai/ssd/ssd1/www/i.460.net.cn/vendor/topthink/framework/src/think/Session.php ( 1.80 KB )
  90. /yingpanguazai/ssd/ssd1/www/i.460.net.cn/vendor/topthink/framework/src/think/session/driver/File.php ( 6.27 KB )
  91. /yingpanguazai/ssd/ssd1/www/i.460.net.cn/vendor/topthink/framework/src/think/contract/SessionHandlerInterface.php ( 0.87 KB )
  92. /yingpanguazai/ssd/ssd1/www/i.460.net.cn/vendor/topthink/framework/src/think/session/Store.php ( 7.12 KB )
  93. /yingpanguazai/ssd/ssd1/www/i.460.net.cn/vendor/topthink/framework/src/think/Route.php ( 23.73 KB )
  94. /yingpanguazai/ssd/ssd1/www/i.460.net.cn/vendor/topthink/framework/src/think/route/RuleName.php ( 5.75 KB )
  95. /yingpanguazai/ssd/ssd1/www/i.460.net.cn/vendor/topthink/framework/src/think/route/Domain.php ( 2.53 KB )
  96. /yingpanguazai/ssd/ssd1/www/i.460.net.cn/vendor/topthink/framework/src/think/route/RuleGroup.php ( 22.43 KB )
  97. /yingpanguazai/ssd/ssd1/www/i.460.net.cn/vendor/topthink/framework/src/think/route/Rule.php ( 26.95 KB )
  98. /yingpanguazai/ssd/ssd1/www/i.460.net.cn/vendor/topthink/framework/src/think/route/RuleItem.php ( 9.78 KB )
  99. /yingpanguazai/ssd/ssd1/www/i.460.net.cn/route/app.php ( 1.72 KB )
  100. /yingpanguazai/ssd/ssd1/www/i.460.net.cn/vendor/topthink/framework/src/think/facade/Route.php ( 4.70 KB )
  101. /yingpanguazai/ssd/ssd1/www/i.460.net.cn/vendor/topthink/framework/src/think/route/dispatch/Controller.php ( 4.74 KB )
  102. /yingpanguazai/ssd/ssd1/www/i.460.net.cn/vendor/topthink/framework/src/think/route/Dispatch.php ( 10.44 KB )
  103. /yingpanguazai/ssd/ssd1/www/i.460.net.cn/app/controller/Index.php ( 4.81 KB )
  104. /yingpanguazai/ssd/ssd1/www/i.460.net.cn/app/BaseController.php ( 2.05 KB )
  105. /yingpanguazai/ssd/ssd1/www/i.460.net.cn/vendor/topthink/think-orm/src/facade/Db.php ( 0.93 KB )
  106. /yingpanguazai/ssd/ssd1/www/i.460.net.cn/vendor/topthink/think-orm/src/db/connector/Mysql.php ( 5.44 KB )
  107. /yingpanguazai/ssd/ssd1/www/i.460.net.cn/vendor/topthink/think-orm/src/db/PDOConnection.php ( 52.47 KB )
  108. /yingpanguazai/ssd/ssd1/www/i.460.net.cn/vendor/topthink/think-orm/src/db/Connection.php ( 8.39 KB )
  109. /yingpanguazai/ssd/ssd1/www/i.460.net.cn/vendor/topthink/think-orm/src/db/ConnectionInterface.php ( 4.57 KB )
  110. /yingpanguazai/ssd/ssd1/www/i.460.net.cn/vendor/topthink/think-orm/src/db/builder/Mysql.php ( 16.58 KB )
  111. /yingpanguazai/ssd/ssd1/www/i.460.net.cn/vendor/topthink/think-orm/src/db/Builder.php ( 24.06 KB )
  112. /yingpanguazai/ssd/ssd1/www/i.460.net.cn/vendor/topthink/think-orm/src/db/BaseBuilder.php ( 27.50 KB )
  113. /yingpanguazai/ssd/ssd1/www/i.460.net.cn/vendor/topthink/think-orm/src/db/Query.php ( 15.71 KB )
  114. /yingpanguazai/ssd/ssd1/www/i.460.net.cn/vendor/topthink/think-orm/src/db/BaseQuery.php ( 45.13 KB )
  115. /yingpanguazai/ssd/ssd1/www/i.460.net.cn/vendor/topthink/think-orm/src/db/concern/TimeFieldQuery.php ( 7.43 KB )
  116. /yingpanguazai/ssd/ssd1/www/i.460.net.cn/vendor/topthink/think-orm/src/db/concern/AggregateQuery.php ( 3.26 KB )
  117. /yingpanguazai/ssd/ssd1/www/i.460.net.cn/vendor/topthink/think-orm/src/db/concern/ModelRelationQuery.php ( 20.07 KB )
  118. /yingpanguazai/ssd/ssd1/www/i.460.net.cn/vendor/topthink/think-orm/src/db/concern/ParamsBind.php ( 3.66 KB )
  119. /yingpanguazai/ssd/ssd1/www/i.460.net.cn/vendor/topthink/think-orm/src/db/concern/ResultOperation.php ( 7.01 KB )
  120. /yingpanguazai/ssd/ssd1/www/i.460.net.cn/vendor/topthink/think-orm/src/db/concern/WhereQuery.php ( 19.37 KB )
  121. /yingpanguazai/ssd/ssd1/www/i.460.net.cn/vendor/topthink/think-orm/src/db/concern/JoinAndViewQuery.php ( 7.11 KB )
  122. /yingpanguazai/ssd/ssd1/www/i.460.net.cn/vendor/topthink/think-orm/src/db/concern/TableFieldInfo.php ( 2.63 KB )
  123. /yingpanguazai/ssd/ssd1/www/i.460.net.cn/vendor/topthink/think-orm/src/db/concern/Transaction.php ( 2.77 KB )
  124. /yingpanguazai/ssd/ssd1/www/i.460.net.cn/vendor/topthink/framework/src/think/log/driver/File.php ( 5.96 KB )
  125. /yingpanguazai/ssd/ssd1/www/i.460.net.cn/vendor/topthink/framework/src/think/contract/LogHandlerInterface.php ( 0.86 KB )
  126. /yingpanguazai/ssd/ssd1/www/i.460.net.cn/vendor/topthink/framework/src/think/log/Channel.php ( 3.89 KB )
  127. /yingpanguazai/ssd/ssd1/www/i.460.net.cn/vendor/topthink/framework/src/think/event/LogRecord.php ( 1.02 KB )
  128. /yingpanguazai/ssd/ssd1/www/i.460.net.cn/vendor/topthink/think-helper/src/Collection.php ( 16.47 KB )
  129. /yingpanguazai/ssd/ssd1/www/i.460.net.cn/vendor/topthink/framework/src/think/facade/View.php ( 1.70 KB )
  130. /yingpanguazai/ssd/ssd1/www/i.460.net.cn/vendor/topthink/framework/src/think/View.php ( 4.39 KB )
  131. /yingpanguazai/ssd/ssd1/www/i.460.net.cn/vendor/topthink/framework/src/think/Response.php ( 8.81 KB )
  132. /yingpanguazai/ssd/ssd1/www/i.460.net.cn/vendor/topthink/framework/src/think/response/View.php ( 3.29 KB )
  133. /yingpanguazai/ssd/ssd1/www/i.460.net.cn/vendor/topthink/framework/src/think/Cookie.php ( 6.06 KB )
  134. /yingpanguazai/ssd/ssd1/www/i.460.net.cn/vendor/topthink/think-view/src/Think.php ( 8.38 KB )
  135. /yingpanguazai/ssd/ssd1/www/i.460.net.cn/vendor/topthink/framework/src/think/contract/TemplateHandlerInterface.php ( 1.60 KB )
  136. /yingpanguazai/ssd/ssd1/www/i.460.net.cn/vendor/topthink/think-template/src/Template.php ( 46.61 KB )
  137. /yingpanguazai/ssd/ssd1/www/i.460.net.cn/vendor/topthink/think-template/src/template/driver/File.php ( 2.41 KB )
  138. /yingpanguazai/ssd/ssd1/www/i.460.net.cn/vendor/topthink/think-template/src/template/contract/DriverInterface.php ( 0.86 KB )
  139. /yingpanguazai/ssd/ssd1/www/i.460.net.cn/runtime/temp/ea612fc1da910b74827694dd9af81119.php ( 11.98 KB )
  140. /yingpanguazai/ssd/ssd1/www/i.460.net.cn/vendor/topthink/think-trace/src/Html.php ( 4.42 KB )
  1. CONNECT:[ UseTime:0.000450s ] mysql:host=127.0.0.1;port=3306;dbname=i460;charset=utf8mb4
  2. SHOW FULL COLUMNS FROM `fenlei` [ RunTime:0.000780s ]
  3. SELECT * FROM `fenlei` WHERE `fid` = 0 [ RunTime:0.000276s ]
  4. SELECT * FROM `fenlei` WHERE `fid` = 63 [ RunTime:0.000293s ]
  5. SHOW FULL COLUMNS FROM `set` [ RunTime:0.000554s ]
  6. SELECT * FROM `set` [ RunTime:0.000249s ]
  7. SHOW FULL COLUMNS FROM `article` [ RunTime:0.000631s ]
  8. SELECT * FROM `article` WHERE `id` = 470449 LIMIT 1 [ RunTime:0.000471s ]
  9. UPDATE `article` SET `lasttime` = 1779330653 WHERE `id` = 470449 [ RunTime:0.000602s ]
  10. SELECT * FROM `fenlei` WHERE `id` = 64 LIMIT 1 [ RunTime:0.000246s ]
  11. SELECT * FROM `article` WHERE `id` < 470449 ORDER BY `id` DESC LIMIT 1 [ RunTime:0.000434s ]
  12. SELECT * FROM `article` WHERE `id` > 470449 ORDER BY `id` ASC LIMIT 1 [ RunTime:0.000435s ]
  13. SELECT * FROM `article` WHERE `id` < 470449 ORDER BY `id` DESC LIMIT 10 [ RunTime:0.000711s ]
  14. SELECT * FROM `article` WHERE `id` < 470449 ORDER BY `id` DESC LIMIT 10,10 [ RunTime:0.000991s ]
  15. SELECT * FROM `article` WHERE `id` < 470449 ORDER BY `id` DESC LIMIT 20,10 [ RunTime:0.001024s ]
0.082213s